EasyManua.ls Logo

Graco PR70 - Page 21

Graco PR70
72 pages
Print Icon
To Next Page IconTo Next Page
To Next Page IconTo Next Page
To Previous Page IconTo Previous Page
To Previous Page IconTo Previous Page
Loading...
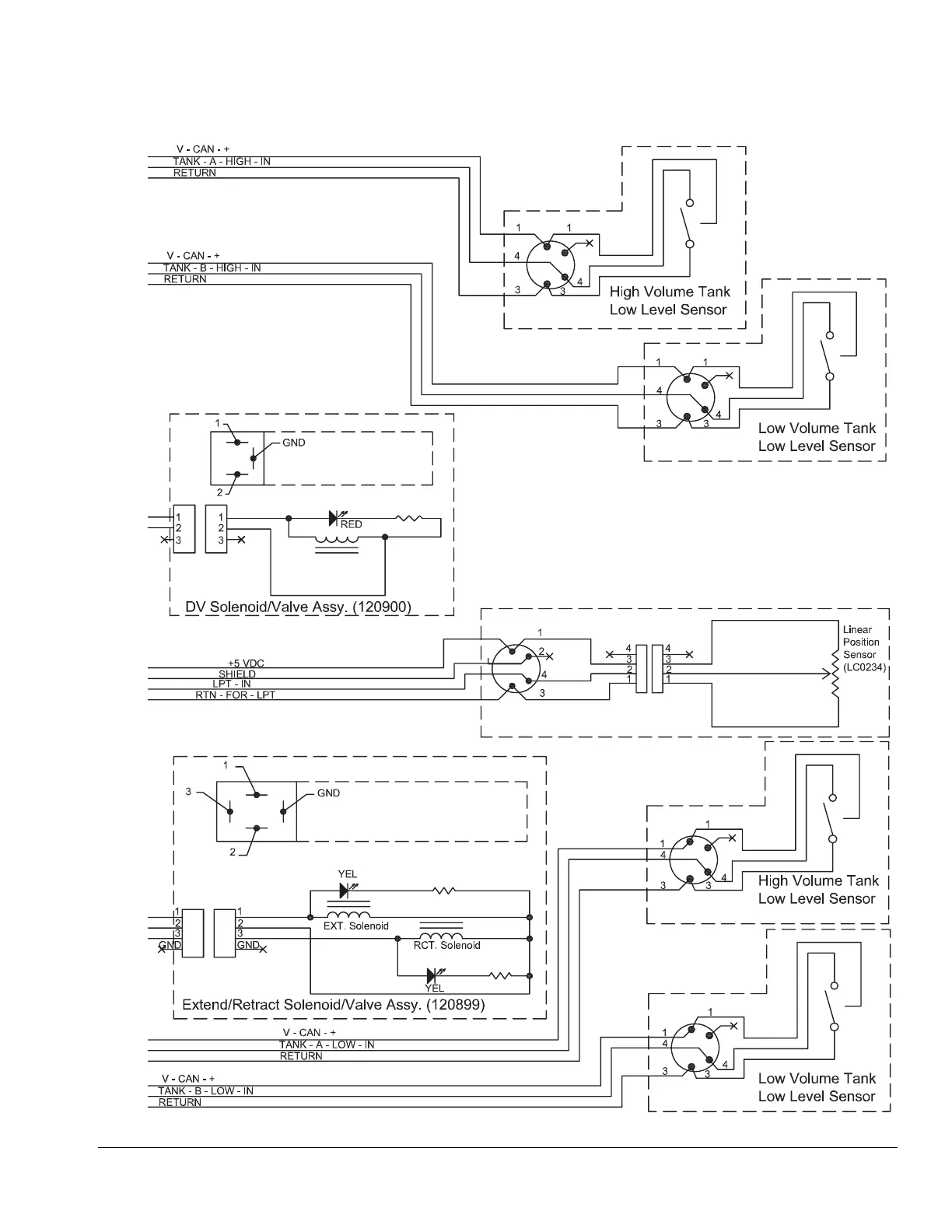
Electrical Schematics
312760A 21
FIG. 2: Electrical Schematic - Page 2
A
B
C
D
E
F
G
H
J
K
L
M
N
P
R
S
T
U
V
W
X