EasyManua.ls Logo

Hamer 525WT - MACHINE SPECIFICATIONS; MACHINE LAYOUT

Default Icon
118 pages
Print Icon
To Next Page IconTo Next Page
To Next Page IconTo Next Page
To Previous Page IconTo Previous Page
To Previous Page IconTo Previous Page
Loading...
Rev.7 2
MACHINE SPECIFICATIONS
Power 240/120 VAC (3 pole, 4 wire) single phase, 60 Hz 30 Amp (240 VAC – line to line)
Requirements (120 VAC = each line to neutral)
Air Requires one air drop: One 1/2” tubing (minimum) with ¼” NPT fitting,
Requirements 20 CFM at 80 PSI to the Form Fill & Seal Machine (total 20 CFM).
Water Water supply with minimal pressure, ¼” tubing (maximum) with 1/8” NPT fitting to
Requirements the Form, Fill, & Seal Machine. Recommended sediment filter and shut-off valve.
Machine Size 11’5” maximum length by 3’6” maximum width by 6’8” to 7’9” maximum height.
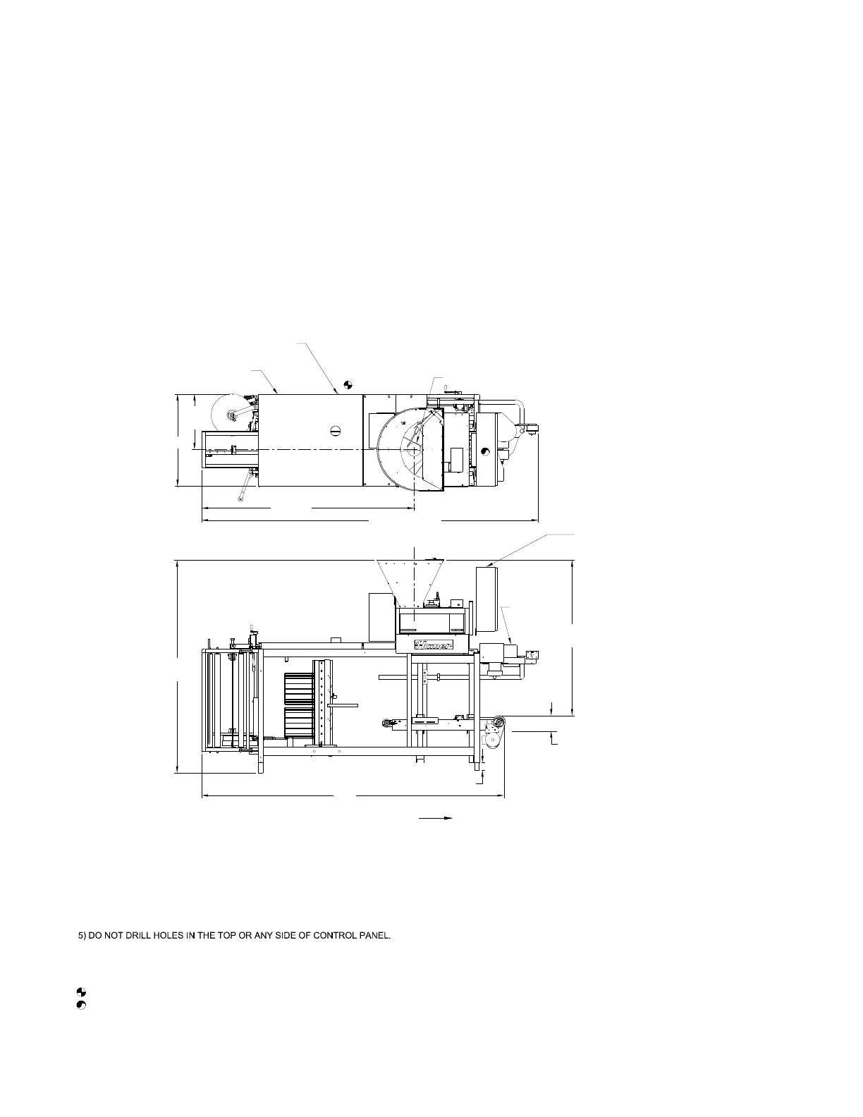
MACHINE LAYOUT
6" MINIMUM DISTANCE TO TOP
OF CUSTOMER CONVEYOR
79.5" MIN
93" MAX
60"
SEE NOTE 2
115"
81" REF.
21"
REF.
35"
FEED DIRECTION
AIR IN 20 CFM @ 80 PSI
1/2" TUBE MINIMUM
WATER (CLEAN) IN
1/2" TUBE MINIMUM
CONTROL PANEL (ONE DROP INCLUDES)
120 / 240 VAC 1-PHASE 60HZ 30 AMP
(4 WIRE WITH NEUTRAL)
(120 VAC = EACH LINE TO NEUTRAL)
(240 VAC = LINE TO LINE)
SEE NOTE 5
PRODUCT INFEED
FACTORY SET LEGS TO 3"
128" - 137" REF.
MODEL 125
BAG CLOSER
NOTES:
1) ALL DIMENSIONS ARE IN INCHES.
2) 60" NEEDED FOR 21" BAGS. DIMENSIONS CHANGE
ACCORDING TO BAG SIZE, AND SOME ADJUSTMENTS MAY
BE REQUIRED. (THIS DIMENSION INCREASES 1" FOR EACH
ADDITIONAL 1" OF BAG LENGTH)
3) MACHINE SHOULD BE LOCATED WITH A MINIMUM OF 2 FT.
CLEARANCE ON ALL FOUR SIDES
4) ALL AIR INPUTS REQUIRE CLEAN DRY AIR.
ALL WIRES MUST GO IN THROUGH THE BOTTOM OF THE CONTROL
PANEL. ANY MODIFICATIONS TO THE CONTROL PANEL
MAY VOID MANUFACTURES WARRANTY!
6) SPECIFICATIONS SUBJECT TO CHANGE WITHOUT NOTICE.
*
AIR DROPS
ELECTRICAL DROPS
*

Related product manuals