EasyManua.ls Logo

Hamer 525WT - Bag Closer Mounting

Default Icon
118 pages
Print Icon
To Next Page IconTo Next Page
To Next Page IconTo Next Page
To Previous Page IconTo Previous Page
To Previous Page IconTo Previous Page
Loading...
Rev.7 24
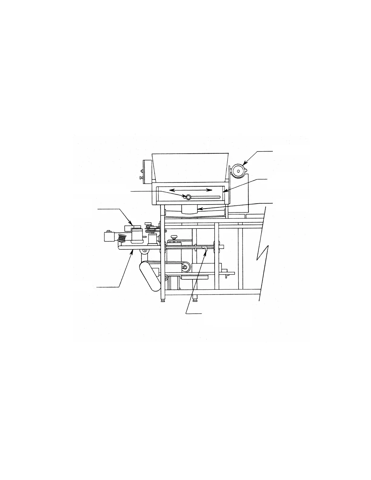
BAG CLOSER MOUNTING
The Bag Closer can be adjusted in or out as needed to gather bags as they come out of the Film Feed System.
1. Loosen the two Hex Head Cap Screws on the Closer Stop Lock and slide the Bag Closer in or out as
needed, then retighten the Hex Head Cap Screws on the Closer Stop Lock.
Note: The Bag Closer can be serviced without removing it from the machine.
2. Lift the left side of the Bag Closer to disengage it from the Closer Stop Lock as shown.
3. Pull the Bag Closer away from the machine and continue lifting the left side until the Bag Closer is upside
down.
FIGURE 12
ADJUSTING BOLT
DRUM MOTOR
FILLER DRUM
OUTER SLEEVE
CLOSER STOP
LOCK
CHUTE MODEL 125
BAG CLOSER
LIFT UP & OUT

Related product manuals