EasyManua.ls Logo

HIKVISION DS-KD8003 Series - Page 63

HIKVISION DS-KD8003 Series
113 pages
Print Icon
To Next Page IconTo Next Page
To Next Page IconTo Next Page
To Previous Page IconTo Previous Page
To Previous Page IconTo Previous Page
Loading...
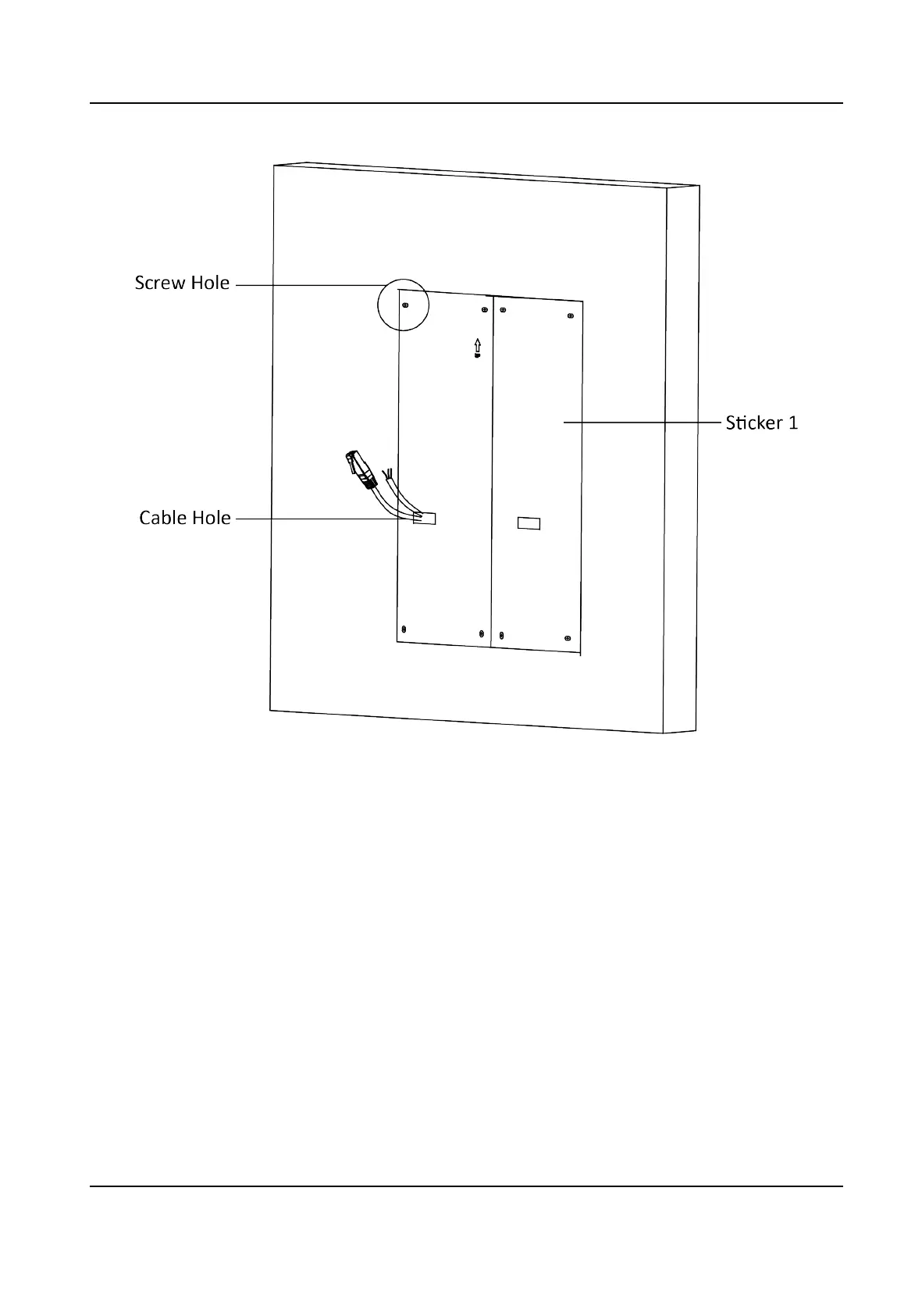
Figure 4-44 Drill Screw Holes
4.
Remove the sckers and insert the expansion sleeves into the screw holes.
5.
Thread the module-connecng line (400 mm) and grounding line across the thread hole of both
frames.
DS-KD8003 Series Module Door Staon User Manual
55

Related product manuals