EasyManua.ls Logo

Hisense AHM-080FJFAA - On-Site Wiring; Power Line Requirements; Temperature Sensor Wiring Diagram; Water Tank Power Line and Temperature Switch Wiring Diagram

Hisense AHM-080FJFAA
65 pages
Print Icon
To Next Page IconTo Next Page
To Next Page IconTo Next Page
To Previous Page IconTo Previous Page
To Previous Page IconTo Previous Page
Loading...
55
HN Tco
WN
water tank
temperature
protection
˄ć˅
Electrical heating
earth wire
Water tankelectrical box
water tank
electric heating
power line
null line
earth wire
live line
L1
L3
L4
T2
red
yellow/green
yellow
black
red
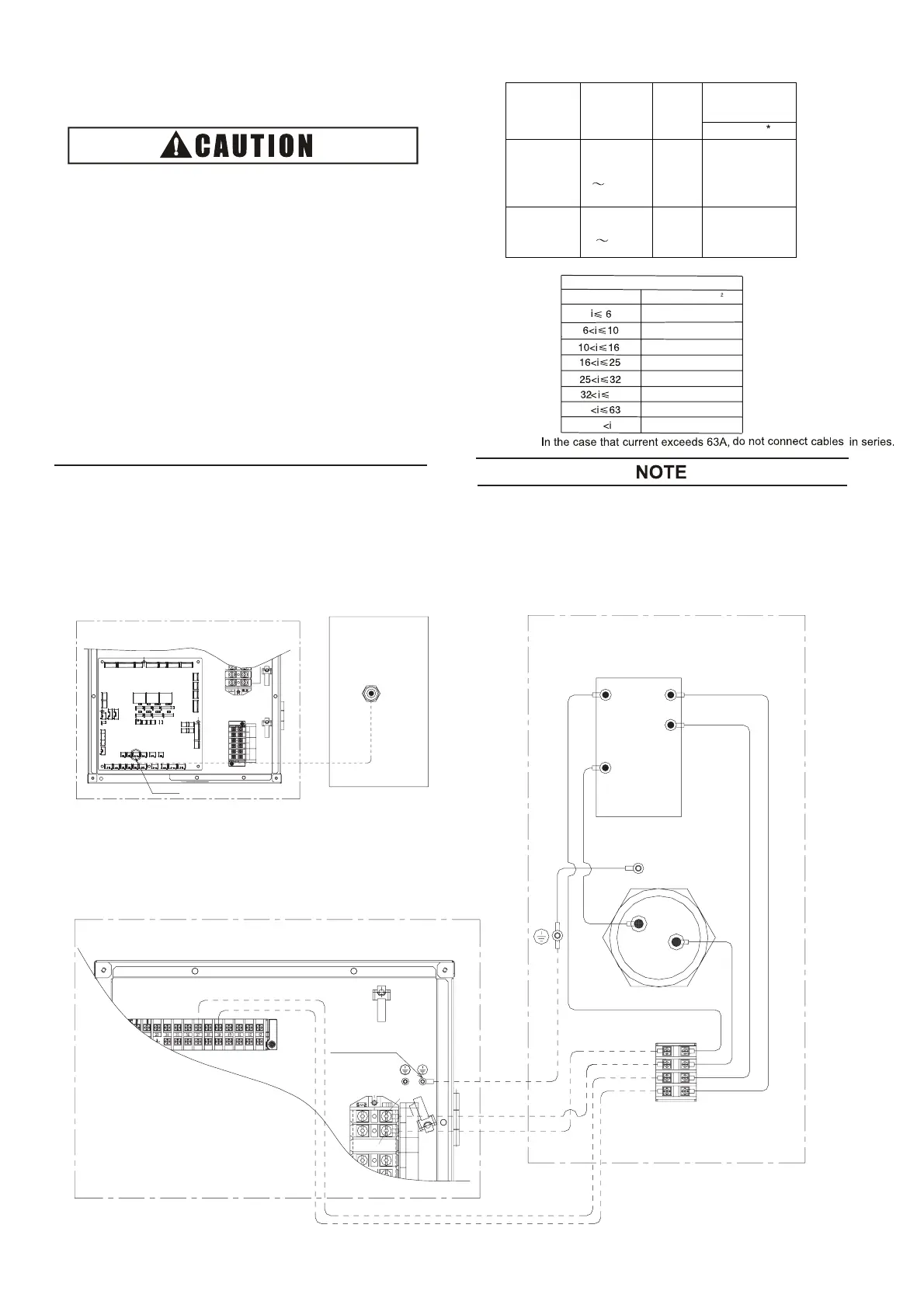
3.6 On-site Wiring
Electrical wiring must be performed by professional
technician according to national regulations.
(1) Correctly mount cable water proof head and
electrical box cover, preventing short circuit
caused by water intruding into electrical box.
(2) Auxiliary electric heating is 3kW. Power line
connection should give concern to live line and
null line, and be grounded strictly. Detailed
wiring diagram refers to wiring diagram and
Fig.3.3.
(3) Temperature sensor is weak electricity signal,
preventing mixed with strong electricity signal.
water module electrical box
3.9 Water Tank Power Line and
Temperature Switch Wiring Diagram
3.7 Power Line Requirements
Water
Power
Full
series
water
tank
power
supply
16.9A 2.5mm
2
Water
tank
temperature
swtich
-
0.75~2.5mm
2
(1) Installation of on-site wire must be conforming to
local regulations.
(2)The above line º 1 is selected according to
relevant international standard.
(3) When power line is connected in series, total
current value selects power line specification.
Fig.3.3 Power Line and
Temperature Switch Wiring Diagram
EN60 335-1
1
Module
Type
Source
220V-240V
50Hz
220V-240V
50Hz
Rated
Current
Power Source
Cable Size
Wire Size(mm )
4
2.5
6
10
16
1
2.5
2.5
According to EN60335-1
Current(A)
1:
8.8. 8.8. 8.8.
L
N
墺曞
达譓
繣捋
墺邌
儉刿
PCN10
PCN4
CN5
CN2
CN1
CN3
CN4
CN7A
CN7B
CN8
CN10
CN19
DSW1 DSW2 DSW3 DSW4
DSW5
DSW6
DSW7
DSW8 DSW9
EF1
EFR1
EFR2
PCN1PCN3
PCN2PCN8
PCN5PCN6
PCN7PCN9 PCN12PCN13
PCN14
PCN15
PCN16
PSW1
SEG3SEG2SEG1
THM1
THM2
THM4
THM5
THM3
THM6
THM8
THM10
TP1
JP1
JP2
THM7
CN6
1
5
PSW2
PSW3
瓙渴繣
1AB
2
56
7+0
3.8 Temperature Sensor Wiring
Diagram
water module electrical box
water tank
temperature
controller
insert port
main control
board
Fig.3.2 Water tank temperature sensor wiring diagram
*
1 code designation 60245 IEC 57
Power panel
black
37 39
WL
40
40
63

Table of Contents

Related product manuals