EasyManua.ls Logo

HP ProLiant DL380e Gen8 - Firmware and Software Deployment

HP ProLiant DL380e Gen8
130 pages
To Next Page IconTo Next Page
To Next Page IconTo Next Page
To Previous Page IconTo Previous Page
To Previous Page IconTo Previous Page
Loading...
Cabling 107
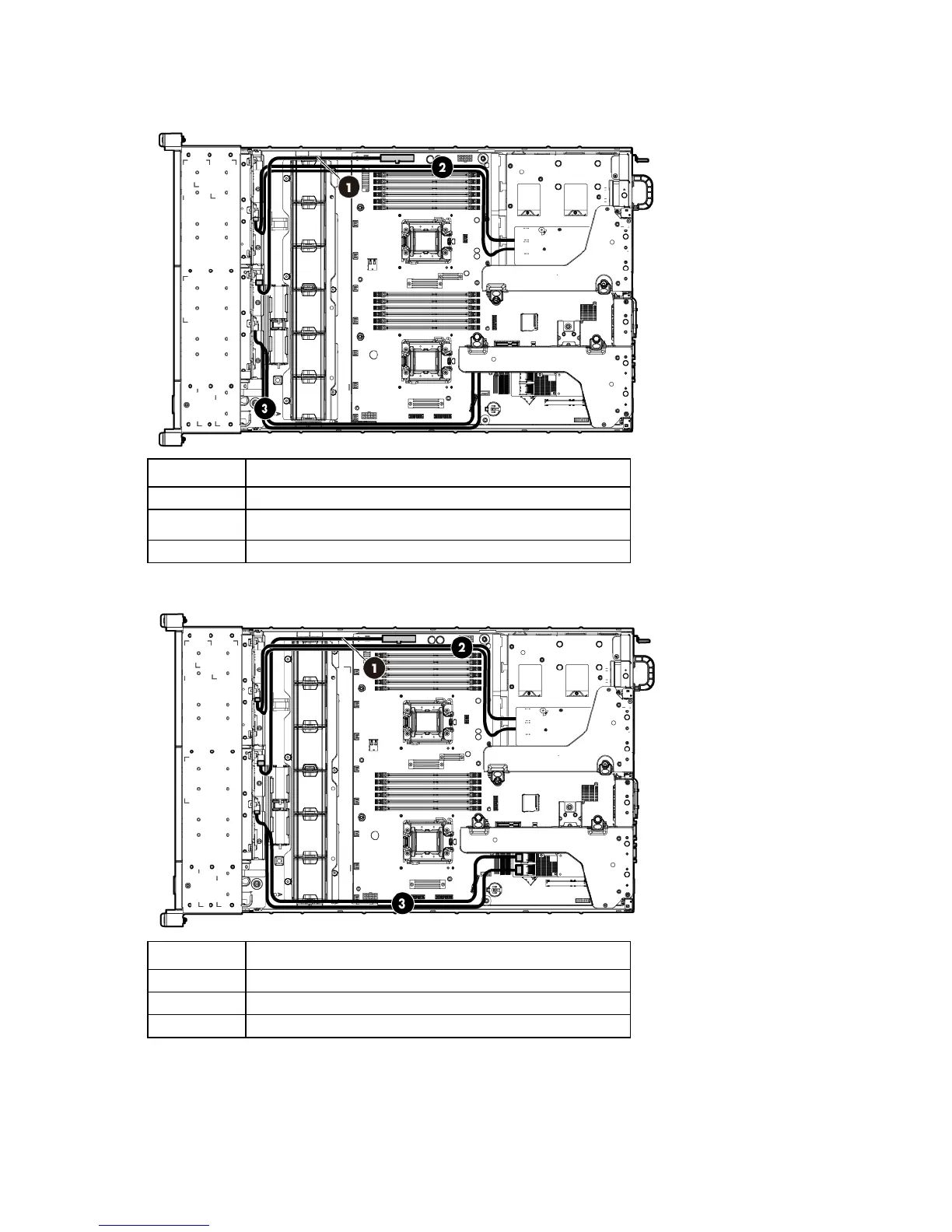
Mini-SAS cables connected to a storage controller option installed in the secondary PCI riser cage, and
a riser board with SAS support installed in the primary PCI riser cage.
Item Description
1
Power cable
2
Mini-SAS cables to the storage controller option
3
Mini-SAS cables to the riser board with SAS support
Mini-SAS cables connected to storage controller options installed in separate PCI riser cages
Item Description
1
Power cable
2
Mini-SAS cables to the secondary PCI riser cage
3
Mini-SAS cables to the primary PCI riser cage

Table of Contents

Other manuals for HP ProLiant DL380e Gen8

Related product manuals