EasyManua.ls Logo

HP ProLiant ML30 Gen10 - USB RDX Drive Cabling

HP ProLiant ML30 Gen10
251 pages
To Next Page IconTo Next Page
To Next Page IconTo Next Page
To Previous Page IconTo Previous Page
To Previous Page IconTo Previous Page
Loading...
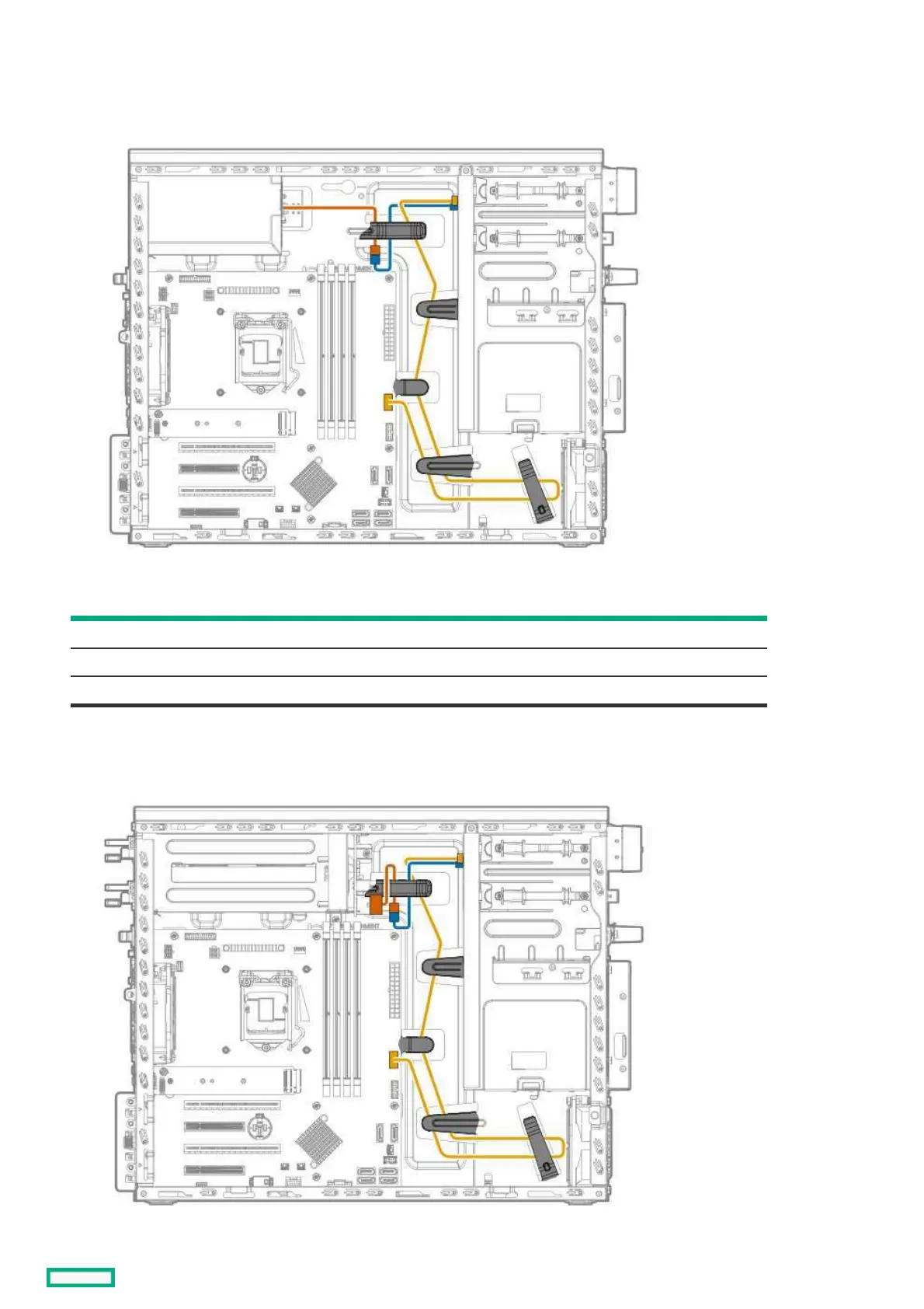
USB RDX drive cablingUSB RDX drive cabling
USB RDX drive with non-hot-plug power supply cablingUSB RDX drive with non-hot-plug power supply cabling
Cable colorCable color DescriptionDescription
Orange Power supply cable
Blue USB RDX drive power cable
Gold USB RDX drive cable
USB RDX drive with Flexible Slot power supply cablingUSB RDX drive with Flexible Slot power supply cabling
USB RDX drive cabling 174

Table of Contents

Related product manuals