EasyManua.ls Logo

Hydrafeed MSV 80 - Page 9

Default Icon
224 pages
Print Icon
To Next Page IconTo Next Page
To Next Page IconTo Next Page
To Previous Page IconTo Previous Page
To Previous Page IconTo Previous Page
Loading...
6
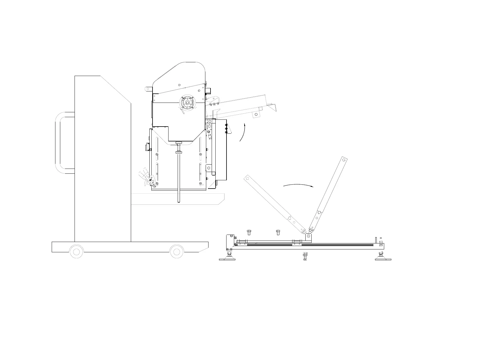
Figure 2 – Assembly Plan

Table of Contents

Related product manuals