EasyManua.ls Logo

iDiPOS TP-80 - 46.GS(ApLpHnm; 47.GS;m

iDiPOS TP-80
54 pages
Print Icon
To Next Page IconTo Next Page
To Next Page IconTo Next Page
To Previous Page IconTo Previous Page
To Previous Page IconTo Previous Page
Loading...
30
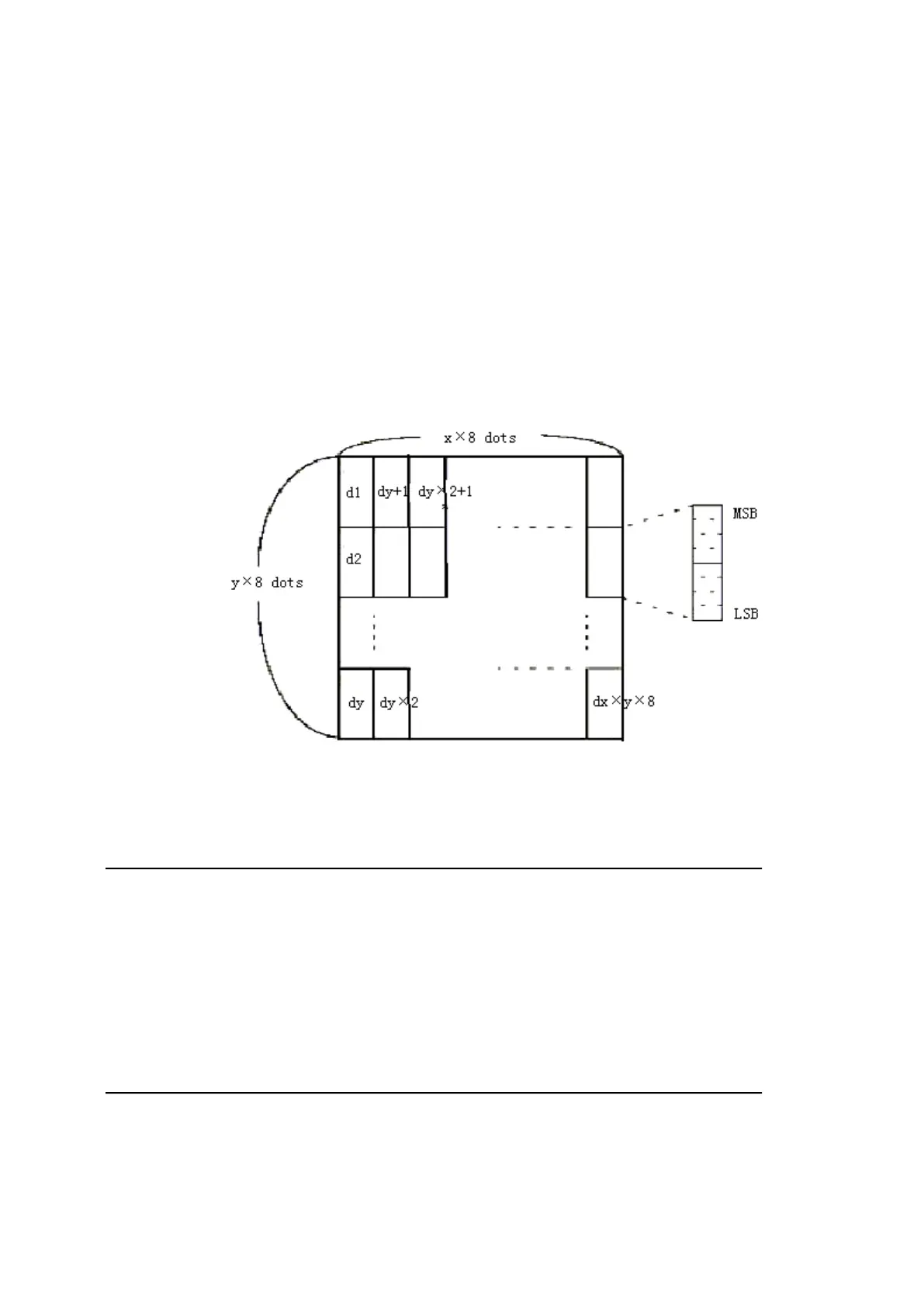
[Description] Defines a downloaded bit image using the number of dots specified by x and y
x specifies the number of dots in the horizontal direction.
y specifies the number of dots in the vertical direction.
[Details] The number of dots in the horizontal direction is x
8, in the vertical direction it
is y
8.
If x
y is out of the specified range, this command is disabled.
The d indicates bit-image data. Data ( d) specifies a bit printed to 1 and not
printed to 0.
The downloaded bit image definition is cleared when:
ESC @ is executed.
ESC & is executed.
FS q is executed.
Printer is reset or the power is off.
The following figure shows the relationship between the downloaded bit image
and the printed data.
[Reference] GS /
46. GS ( A pL pH n m
[Name] Save printed hex data
[Format] ASCII GS A pL pH n m
Hex 1D 28 41 pL pH n m
Decimal 29 40 65 pL pH n m
[Range] pL=2,pH=0;
n=0,48 ;m=1,49;
47. GS / m
[Name] Print downloaded bit image
[Format] ASCII GS / m
Hex 1D 2F m

Related product manuals