EasyManua.ls Logo

IFM efector 160 LR3000 - Dimensional Drawings and Specifications

IFM efector 160 LR3000
38 pages
Print Icon
To Next Page IconTo Next Page
To Next Page IconTo Next Page
To Previous Page IconTo Previous Page
To Previous Page IconTo Previous Page
Loading...
34
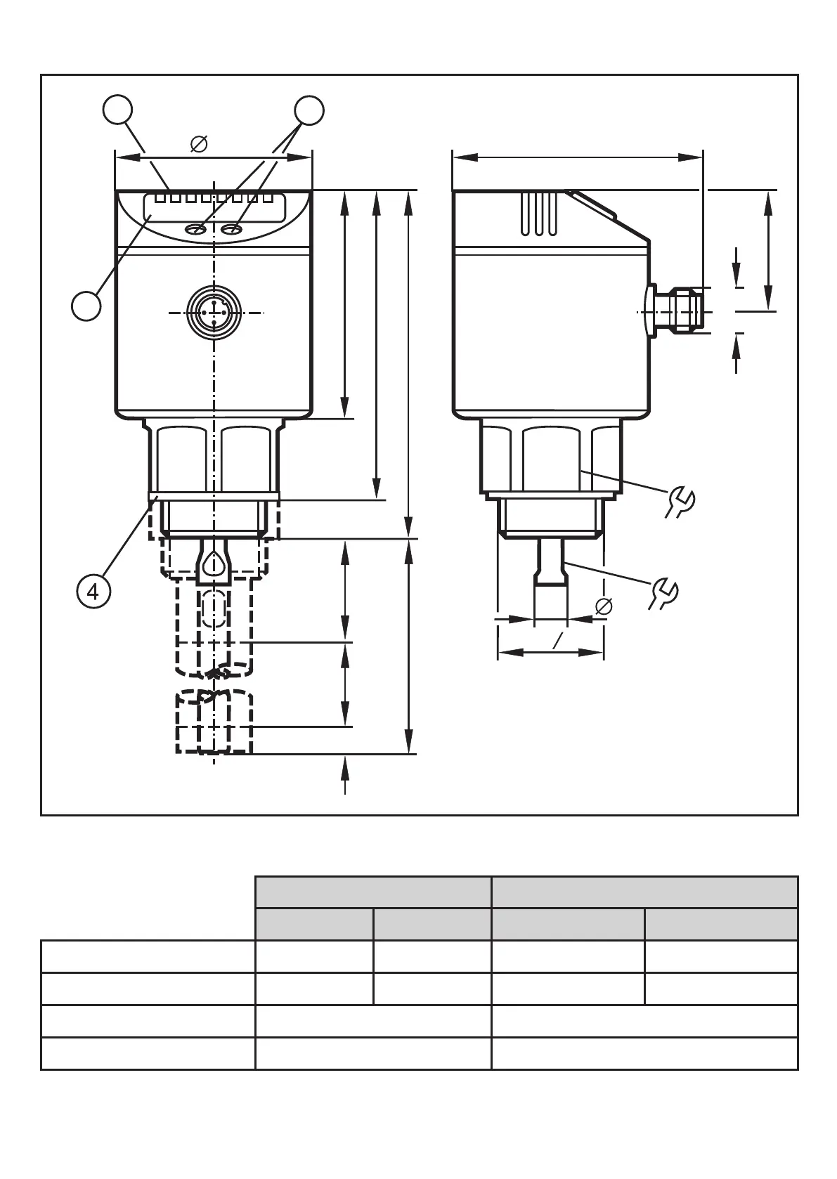
Scale drawing12
30
63
M12 x1
G
4
3
8
6
32
I1
L
50
57
AI2
3
2
1
78
87
Dimensions in mm
1: display; 2: status LEDs; 3: programming buttons; 4: seal
cm inch
min max min max
L (probe length) 10 160 4�0 63
A (active zone) 6 (4) L - 4 (L - 6) 2�4 (1�6) L - 1�6 (L - 2�4)
I1 (inactive zone 1) 3 1�2
I2 (inactive zone 2) 1 (3) 0�4 (1�2)
The values in brackets apply to the setting [MEdI] = [LOW] (setting for the detection of oils
and oil-based media)�

Table of Contents

Related product manuals