EasyManua.ls Logo

IHI IC50 - Replace the Hydraulic Oil and Clean the Strainer

Default Icon
104 pages
Print Icon
To Next Page IconTo Next Page
To Next Page IconTo Next Page
To Previous Page IconTo Previous Page
To Previous Page IconTo Previous Page
Loading...
MAINTENANCE
IC50 ENG 4-14
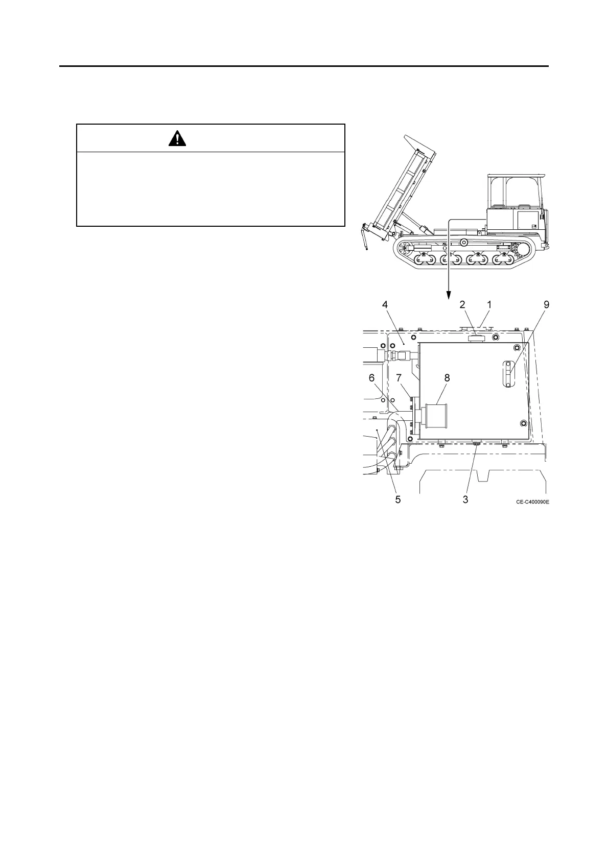
Replace the hydraulic oil and clean the strainer
WARNING
Be sure to set the safety bars under the body
before starting works with the body raised.
Oil is hot immediately after operation. You may
get burnt if you touch oil. Start work after oil
has cooled down.
1. Place the machine on a flat and rigid ground and bring
it into the posture for changing hydraulic oil. Stop the
engine.
2. Open the cover (1). Discharge hydraulic oil through
the filler port (2) into an empty drum with an oil pump.
3. Put the container under the drain plug (3) at the bottom
of the hydraulic oil tank, and remove the drain plug to
discharge residual oil.
Tighten the drain plug after discharging oil.
4. Remove the cover (4), (5). Disconnect the hose from
the tube (6). Remove the bolt (7) and take out the
strainer (8).
5. Clean the strainer to remove dust and foreign matters.
6. Attach the strainer in the reverse order to step 4.
7. Fill the tank with hydraulic oil through the filler port up
to the L level of the level gauge (9). Tighten the filler
port plug.
8. Store the safety bars and start the engine. Keep the
engine running with no load for approximately 5
minutes. Travel the machine and move the dump
cylinder slowly several times. Bring the machine into
the posture for checking the hydraulic oil level. Stop
the engine.
9. Make sure that the hydraulic oil level is within the
proper range. Refill hydraulic oil if insufficient.
Posture for replacing the
hydraulic oil

Table of Contents

Related product manuals