EasyManua.ls Logo

Immergas VICTRIX 50 - Disassembly of Combustion Circuit Components

Immergas VICTRIX 50
36 pages
Print Icon
To Next Page IconTo Next Page
To Next Page IconTo Next Page
To Previous Page IconTo Previous Page
To Previous Page IconTo Previous Page
Loading...
1
3
2
SCARICO
1
4
3
2
SCARICO
1-18
B23
1-19
B23
1-20
B23
B23
1-21
13 - IE
INSTALLERUSER
MAINTENANCE TECHNICIAN
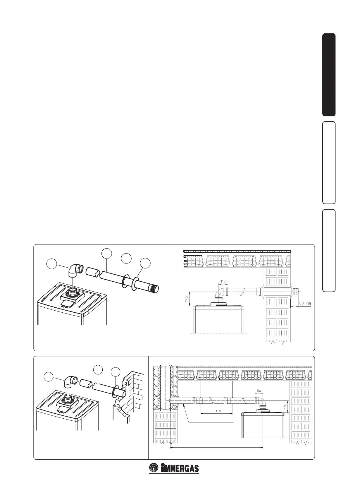
Ø80 horizontal kit with wall ue exhaust.
Kit assembly (Fig. 1-18): install the bend Ø80 (1)
with the male side (smooth) fully home on the
central hole of the boiler. Fit the exhaust terminal
(2) with the male end (smooth) to the female
end of the bend (1) up to the stop; making sure
that the internal (3) and external (4) wall sealing
plate has been tted. is will ensure sealing and
joining of the elements making up the kit.
Coupling of extension pipes and elbows. To
install push-fitting extensions with other
elements of the ue, proceed as follows: Couple
the pipe or elbow with the male side (smooth)
in the female side (with lip seal) to the end stop
on the previously installed element. is will
ensure sealing eciency of the coupling.
Horizontal kit Ø80 with exhaust in ue. Kit
assembly (Fig. 1-20): install the bend Ø80 (1)
with the male side (smooth) fully home on the
central hole of the boiler. Fit the exhaust pipe (2)
with the male end (smooth) to the female end of
the bend (1) up to the stop; making sure that the
internal wall sealing plate (3) has been tted. is
will ensure sealing and joining of the elements
making up the kit.
Coupling of extension pipes and elbows. To
install push-fitting extensions with other
elements of the ue, proceed as follows: Couple
the pipe or elbow with the male side (smooth)
in the female side (with lip seal) to the end stop
on the previously installed element. is will
ensure sealing eciency of the coupling.
e kit includes:
N° 1 - Bend 90° Ø80 (1)
N° 1 - Exhaust pipe Ø80 (2)
N° 1 - Internal wall sealing plate (3)
e kit includes:
N° 1 - Bend 90° Ø80 (1)
N° 1 - Exhaust terminal Ø80 (2)
N° 1 - Internal wall sealing plate (3)
N° 1 - External wall sealing plate (4)
Extensions for exhaust kits. e maximum
horizontal straight length (without bend in
exhaust), used for Ø80 exhaust pipes is 30
metres (Fig. 1-21).
N.B.: to favour the removal of possible
condensate forming in the exhaust pipe, tilt the
pipes towards the boiler with a min. slope of
1.5%. When installing the Ø80 ducts, a section
clamp with pin must be installed every 3 metres.
1.12 DUCTING OF EXISTING FLUES.
Ducting is an operation through which, within
the context of restructuring a system and
with the introduction of one or more special
ducts, a new system is executed for evacuating
the combustion products of a gas appliance,
starting from an existing ue (or a chimney)
or a technical slot. Ducting requires the use of
ducts declared to be suitable for the purpose by
the manufacturer, following the installation and
user instructions, provided by the manufacturer
and the requirements of the standards in force.
Immergas ducting system Ø80. The "Green
Series" Ø80 exible ducting system must only be
used with Immergas condensing boilers.
In any case, ducting operations must respect
the provisions contained in the standard and in
current technical regulations; in particular, the
declaration of conformity must be compiled at
the end of work and on commissioning of the
ducted system. e instructions in the project
or technical report must likewise be followed, in
cases provided for by the standard and current
technical regulations. e system or components
of the system have a technical life complying with
current standards, provided that:
- It is used in average atmospheric and
environmental conditions, according to
current regulations (absence of combustion
products, dusts or gases that can alter the
normal thermophysical or chemical conditions;
existence of temperatures coming within the
standard range of daily variation, etc.).
- Installation and maintenance must be
performed according to the indications
supplied by the manufacturer and in
compliance with the provisions in force.
- e maximum length of that the Ø80 exible
ducted tract can run is equal to 30 m. is
length is obtained considering the terminal
complete with exhaust, 1m of Ø80 pipe in
exhaust. The two 9 Ø80 bends on boiler
outlet for connecting the ducting system and
two direction changes of the exible pipe inside
the chimney/technical slot.
MAXIMUM LENGTH 30 m
Minimum slope 1.5%
EXHAUST
EXHAUST

Table of Contents

Other manuals for Immergas VICTRIX 50

Related product manuals