EasyManua.ls Logo

Immergas VICTRIX 50 - Air-Gas Adjustments and Calibration

Immergas VICTRIX 50
36 pages
Print Icon
To Next Page IconTo Next Page
To Next Page IconTo Next Page
To Previous Page IconTo Previous Page
To Previous Page IconTo Previous Page
Loading...
B23
1-22
1-23
14 - IE
INSTALLERUSER
MAINTENANCE TECHNICIAN
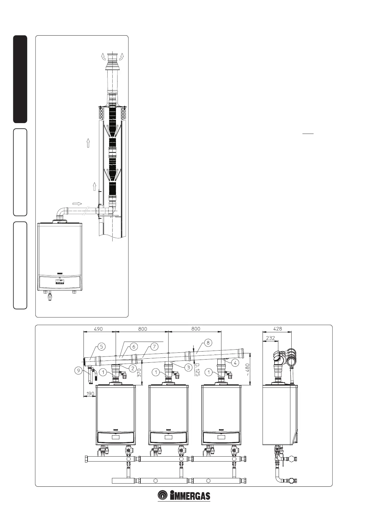
1.13 FLUE EXHAUST WITH BOILERS IN
CASCADE.
e "Victrix 50" boilers installed in cascade (set)
composed of 2 or 3 boilers, can be manifolded
to a unique ue exhaust pipe, which ows into
a ue.
Immergas supplied an appropriate and original
ue exhaust system separately to the boilers.
For correct assembly of the kit, the following
indications must be considered.
- the distance between the boilers (2 or 3) must
be 800 mm (Fig. 1-23);
- the boilers must be positioned on the same
horizontal line;
- the Ø125 exhaust collector must have a
minimum inclination of 3°;
- the discharge of the condensate water produced
by the appliances must be made to ow into a
sewer system;
- the ue gas evacuation collector kit cannot
be installed outdoors (the pipes must not be
exposed to the ultraviolet rays of the sun).
N.B.: check and if necessary regulate the heating
capacity of each individual appliance (see heat
output regulations par.).
Flue exhaust collector assembly (Fig. 1-23):
for proper installation refer to the relative
instructions sheets.
1.14 SYSTEM FILLING.
When the boiler has been connected, ll the
system. Filling is performed at low speed to
ensure release of air bubbles in the water via the
boiler and heating system vents.
The boiler has a built-in automatic venting
valve on the circulator. Check if the cap is loose.
Open the radiator vent valves. Close radiator
vent valves when only water escapes from them.
N.B.: during these operations start up the
circulation pump at intervals, acting on the main
switch positioned on the control panel. Vent the
circulation pump by loosening the front cap and
keeping the motor running. Tighten the cap aer
the operation.
Attention: the "Victrix 5" boiler is not equipped
with an expansion vessel on the system. It
is mandatory to install a closed expansion
vessel to guarantee correct boiler operation.
The expansion vessel must comply with the
European Standards in force. e dimensions of
the expansion vessel depend on the data relative
to the central heating system. Install a vessel
whose capacity responds to the requisites of the
Standards in force.
1.15 FILLING THE CONDENSATE TRAP.
On first lighting of the boiler combustion
products may come out the condensate drain;
aer a few minutes’ operation check that this no
longer occurs. is means that the trap is lled
with condensate to the correct level preventing
the passage of combustion products.
Exhaust
INCLINATION 3°
Exhaust

Table of Contents

Other manuals for Immergas VICTRIX 50

Related product manuals