EasyManua.ls Logo

Immergas VICTRIX 50 - VICTRIX 50 Control Panel

Immergas VICTRIX 50
36 pages
Print Icon
To Next Page IconTo Next Page
To Next Page IconTo Next Page
To Previous Page IconTo Previous Page
To Previous Page IconTo Previous Page
Loading...
1-2
6 - IE
INSTALLERUSER
MAINTENANCE TECHNICIAN
Discharge of combustion products.
e boiler must be connected to an individual
safe and ecient chimney.
N.B.: in the event of individual installation,
“Victrix 50” can be combined with the System
for Ø80 mm flexible piping for condensing
boilers (par. 1.12).
As an alternative, the boiler can discharge
combustion products directly to the outside,
using the relevant ue exhaust kit described in
this book (par. 1.9, 1.10 and 1.11).
If the “Victrix 50” boilers are installed in cascade,
the fume collector (supplied by Immergas) must
be connected to a correctly dimensioned and
ecient chimney (par. 1.13).
1.4 OUTDOOR INSTALLATION.
The boiler has an IPX5D electric insulation
rating and can also be installed outdoors, without
additional protections.
Attention: all optional kits that can be potentially
connected to the boiler must be protected on the
basis of their electrical protection rating.
1.5 ANTIFREEZE PROTECTION.
Minimum temperature -5°C. e boiler comes
as standard with an anti-freeze function that
activates the pump and burner when the system
water temperature in the boiler falls below 3°C.
e anti-freeze function is only guaranteed if:
- the boiler is correctly connected to gas and
electricity power supply circuits;
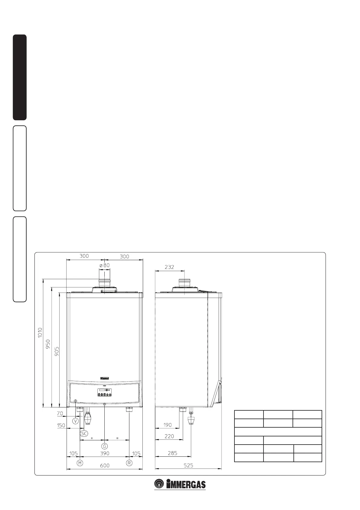
1.6 MAIN DIMENSIONS.
Height (mm) Width (mm) Depth (mm)
950 600 525
Connections
GAS SYSTEM
G R M
3/4” 1”1/2 1”1/2
Key:
V - Electrical connection
G - Gas supply
R - System return
M - System ow
SC - Condensate drain (minimum
internal diameter Ø13 mm)
- the boiler is powered constantly;
- the main switch is engaged;
- the boiler is not in failed ignition block;
- the boiler essential components are not faulty.
In these conditions the boiler is protected against
freezing to an environmental temperature of -5°C.
Minimum temperature -15°C. If the boiler is
installed in a place where the temperature falls
below -5°C and in the event there is no gas (or
the boiler goes into failed ignition block), the
appliance can freeze.
To prevent the risk of freezing follow the
instructions below:
- protects the central heating circuit from
freezing by introducing a top quality anti-freeze
liquid into this circuit, which is not noxious to
health. e instructions of the manufacturer
of this liquid must be followed scrupulously
regarding the percentage necessary with
respect to the minimum temperature at which
the system must be kept. An aqueous solution
must be made with potential pollution class of
water 2.
e materials used for the central heating circuit
of Immergas boilers resist ethylene and propylene
glycol based antifreeze liquids (if the mixtures are
prepared perfectly).
For life and possible disposal, follow the supplier's
instructions.
- Protect the condensate drain trap and P.C.B.
against freezing by using an accessory that is
supplied on request (anti-freeze kit) comprising
two electric resistances, the relevant cables
and a control thermostat (carefully read the
installation instructions contained in the
accessory kit pack).
Boiler anti-freeze protection is thus ensured only if:
- the boiler is correctly connected to the power
supply circuit;
- the main switch is engaged;
- the anti-freezing kit components are ecient.
In these conditions the boiler is protected against
freezing to temperature of -15°C.
The warranty does not cover damage due to
interruption of the electrical power supply and
failure to comply with that stated on the previous
page.

Table of Contents

Other manuals for Immergas VICTRIX 50

Related product manuals