EasyManua.ls Logo

Immergas VICTRIX OMNIA - Main Dimensions; Minimum Installation Distances

Immergas VICTRIX OMNIA
80 pages
Print Icon
To Next Page IconTo Next Page
To Next Page IconTo Next Page
To Previous Page IconTo Previous Page
To Previous Page IconTo Previous Page
Loading...
11
INSTALLER
USERMAINTENANCE TECHNICIAN
TECHNICAL DATA
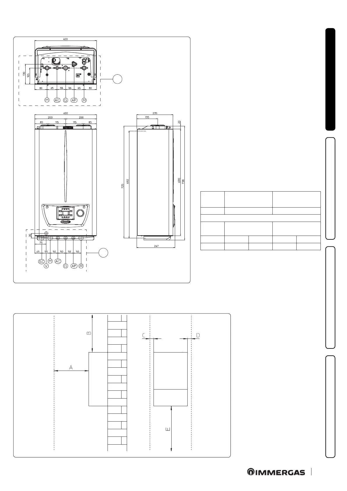
1.2 MAIN DIMENSIONS
1
2
2
Key (Fig. 2):
V - Electric connection
M - System ow
SC - Condensate drain (minimum internal diame-
ter Ø 13 mm)
AC - Domestic hot water outlet
G - Gas supply
AF - Domestic hot water inlet
R - System return
1 - Boiler direct hydraulic connection
2 - Wall-mounted hydraulic connection with Im-
mergas DIN template
Height
(mm)
Width
(mm)
Depth
(mm)
738 400 247
CONNECTIONS
GAS
DOMESTIC HOT
WATER
SYSTEM
G AC AF R M
3/4" 1/2" 1/2" 3/4" 3/4"
1.3 MINIMUM INSTALLATION DISTANCES
3
Key (Fig. 3):
A - 450 mm
B - 350 mm
C - 30 mm
D - 30 mm
E - 350 mm

Table of Contents

Other manuals for Immergas VICTRIX OMNIA

Related product manuals