EasyManua.ls Logo

Inovance Monarch NICE-L-C-4037F - Page 44

Inovance Monarch NICE-L-C-4037F
368 pages
Print Icon
To Next Page IconTo Next Page
To Next Page IconTo Next Page
To Previous Page IconTo Previous Page
To Previous Page IconTo Previous Page
Loading...
2 Installation and Wiring
-
43
-
φ
A
W
B H
D
󶙽
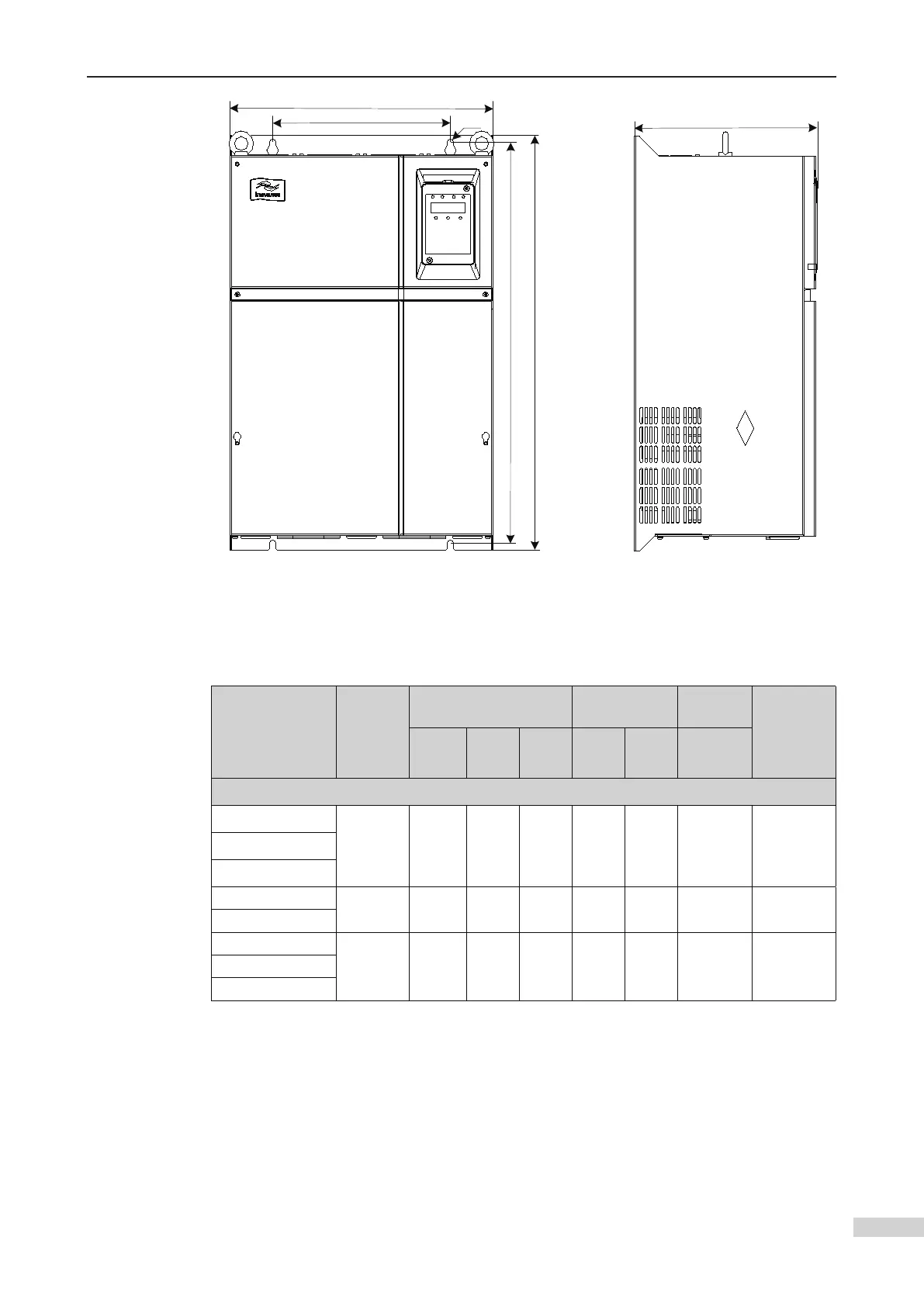
󶙽Installation dimensions of the sheet metal structure kW
Controller Model Structure
Physical Dimensions Mounting Hole
Hole
Diameter
Gross
Weight (kg)
H
(mm)
W
(mm)
D
(mm)
A
(mm)
B
(mm)
(mm)
 󶏒 
NICE-L-C-4037
Sheet
metal
600 385 268.42 260 580 10 32NICE-L-C-4045
NICE-L-C-4055
NICE-L-C-4075
Sheet
metal
700 473 307 343 678 10 47
NICE-L-C-4090
NICE-L-C-4110
Sheet
metal
930 579 380 449 903 10 90NICE-L-C-4132
NICE-L-C-4160

Table of Contents

Other manuals for Inovance Monarch NICE-L-C-4037F

Related product manuals