EasyManua.ls Logo

Inovance Monarch NICE-L-C-4037F - Page 45

Inovance Monarch NICE-L-C-4037F
368 pages
Print Icon
To Next Page IconTo Next Page
To Next Page IconTo Next Page
To Previous Page IconTo Previous Page
To Previous Page IconTo Previous Page
Loading...
2 Installation and Wiring
-
44
-
A
W
B H
D
φ
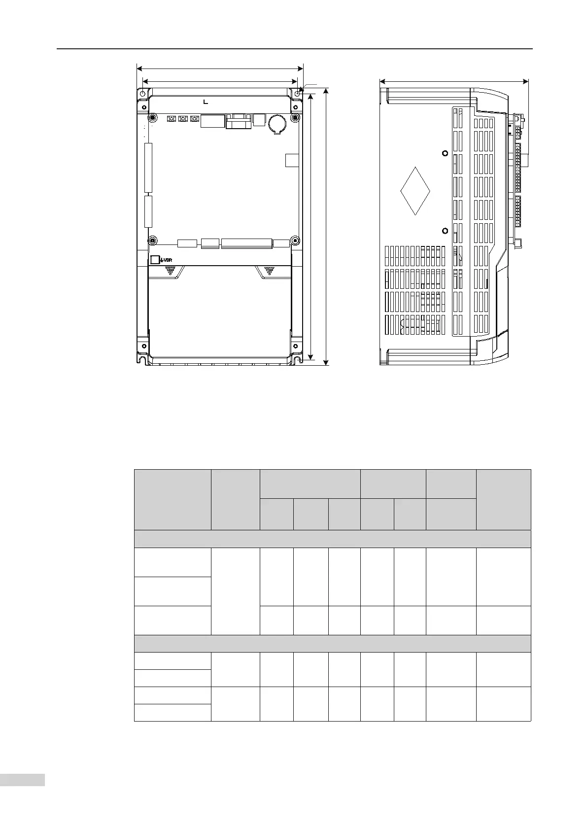
󶙽[F model] Overview and installation dimensions of the plastic structure

󶙽[F model] Installation dimensions of the plastic structure kW
Controller
Model
Structure
Physical Dimensions
Mounting
Hole
Hole
Diameter
Gross
Weight
(kg)
H
(mm)
W
(mm)
D
(mm)
A
(mm)
B
(mm)
(mm)
 󶏒 
220-NICE-L-C-
4018F
Plastic
350 210 188 195 335 6 7.1
220-NICE-L-C-
4022F
220-NICE-L-C-
4030F
400 250 211.5 230 380 7 17.5
 󶏒 
NICE-L-C-4018F
Plastic 350 210 188 195 335 6 7.1
NICE-L-C-4022F
NICE-L-C-4030F
Plastic 400 250 211.5 230 380 7 15.5
NICE-L-C-4037F

Table of Contents

Other manuals for Inovance Monarch NICE-L-C-4037F

Related product manuals