EasyManua.ls Logo

Intergas Xtend-HB-CUSP05 - Electrical Diagram Outdoor Unit

Intergas Xtend-HB-CUSP05
88 pages
Print Icon
To Next Page IconTo Next Page
To Next Page IconTo Next Page
To Previous Page IconTo Previous Page
To Previous Page IconTo Previous Page
Loading...
44
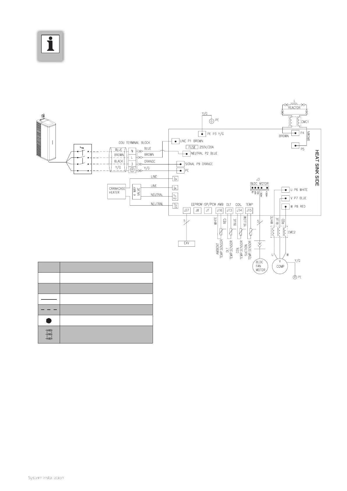
8.7.4 Electrical diagram outdoor unit
NOTES
The wiring diagram below is for
clarification only. The actual shape of the
components may dier.
Control unit
Indoor unit
3 pole isolator switch
Key Discription
CMC Capacitor
COMP Compressor
Factory wiring
Field wiring
Wire terminals
Engaged conductors connectors
(male - female contacts)

Table of Contents