EasyManua.ls Logo

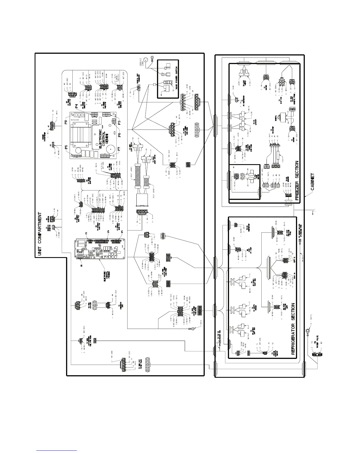
KitchenAid KBFC42FS - Wiring Diagrams; Unit Compartment Wiring Diagram

KitchenAid KBFC42FS
76 pages
Print Icon
To Next Page IconTo Next Page
To Next Page IconTo Next Page
To Previous Page IconTo Previous Page
To Previous Page IconTo Previous Page
Loading...
7-1
WIRING DIAGRAMS
NOTE: IM Solenoid valve and evap cover grounded through mounting.

Table of Contents

Related product manuals