EasyManua.ls Logo

Knoll Antenna Workspaces - Page 17

Knoll Antenna Workspaces
148 pages
Print Icon
To Next Page IconTo Next Page
To Next Page IconTo Next Page
To Previous Page IconTo Previous Page
To Previous Page IconTo Previous Page
Loading...
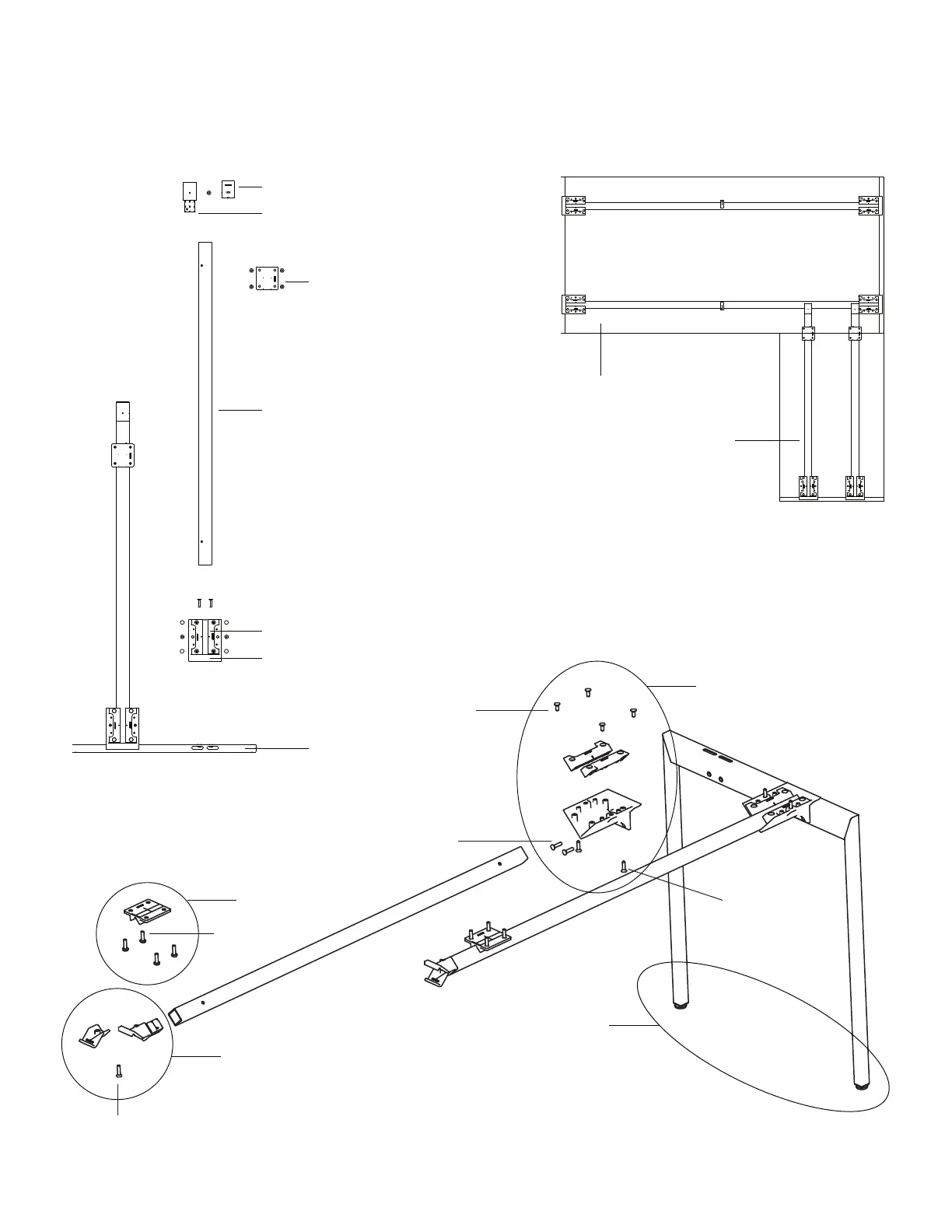
Table Desk with Return (Flush Leg on Return)
ANTENNA 01 C
ANTENNA 01 B
Return Rail Clamp
Bottom Bracket (E)
Return Rail Hook
Top Bracket (D)
W-Bracket (F)
Return Rail
Table Desk Assembly
Return Assembly
Table Desk End Leg
Exploded Return Assembly Detail
Table Desk with Return Plan View
Exploded Return Assembly Plan View
Cradle Clamp Brackets (B)
Table Desk Cradle (A)
Steps 2, 3 and 9
Step 11
Steps 7 and 10
Steps 4 and 5
¼-20 x
5
/
8
" Machine
Screw (I)
¼-20 x 1" Machine
Screw (H)
#14 x 1" FH
Wood Screw (J)
¼-20 x 1" Machine Screw (H)
#14 x 1" FH Wood
Screw (J)

Table of Contents