EasyManua.ls Logo

Knoll Antenna Workspaces - Page 44

Knoll Antenna Workspaces
148 pages
Print Icon
To Next Page IconTo Next Page
To Next Page IconTo Next Page
To Previous Page IconTo Previous Page
To Previous Page IconTo Previous Page
Loading...
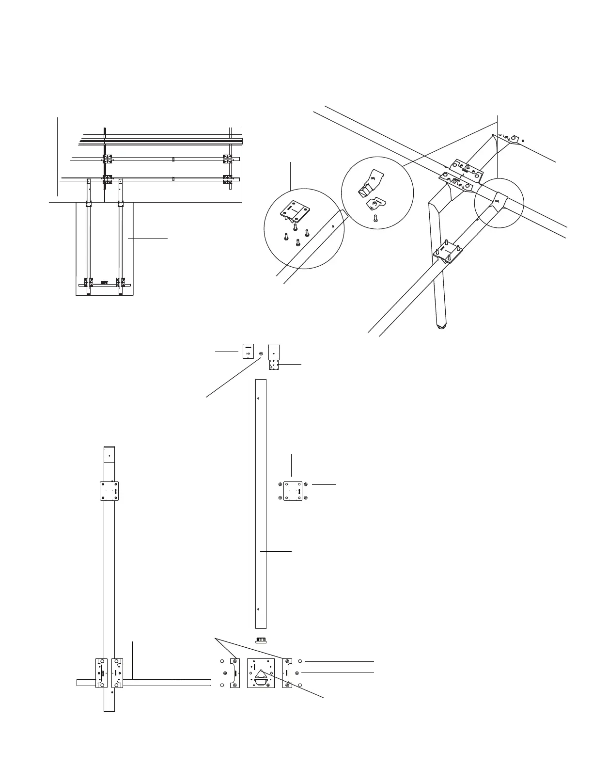
Big Table with Return
Big Table with Return Plan View
Big Table Assembly
Return
Assembly
Steps 8 & 11
Steps 5 & 6
Big Table Return Attachment Exploded Details
Return Rail Clamp
Bottom Bracket (F)
Return Rail
Hook Top
Bracket (E)
W-Bracket (G)
Return Rail
Desk
End Leg
Exploded Return Assembly Plan View
Cradle Clamp
Bracket (B)
Horizontal Rail
Cradle (A)
¼-20 x 1" Machine Screw (H)
#14 x 1" FH Wood Screw (J)
¼-20 x
5
/
8
" Machine Screw (I)
#14 x 1" FH Wood Screw (J)

Table of Contents