EasyManua.ls Logo

KTR ROTEX GS - DKM

KTR ROTEX GS
36 pages
Print Icon
To Next Page IconTo Next Page
To Next Page IconTo Next Page
To Previous Page IconTo Previous Page
To Previous Page IconTo Previous Page
Loading...
KTR Kupplungstechnik
GmbH
D-48407 Rheine
ROTEX
®
GS
Operating/mounting instructions
KTR-N
Sheet:
Edition:
45510 EN
10of36
15
Please note protection
mark ISO 16016.
Drawn: 15.10.12 Pz Replaced for: KTR-N valid from 08.02.12
Verified: 29.10.12 Pz Replaced by:
1
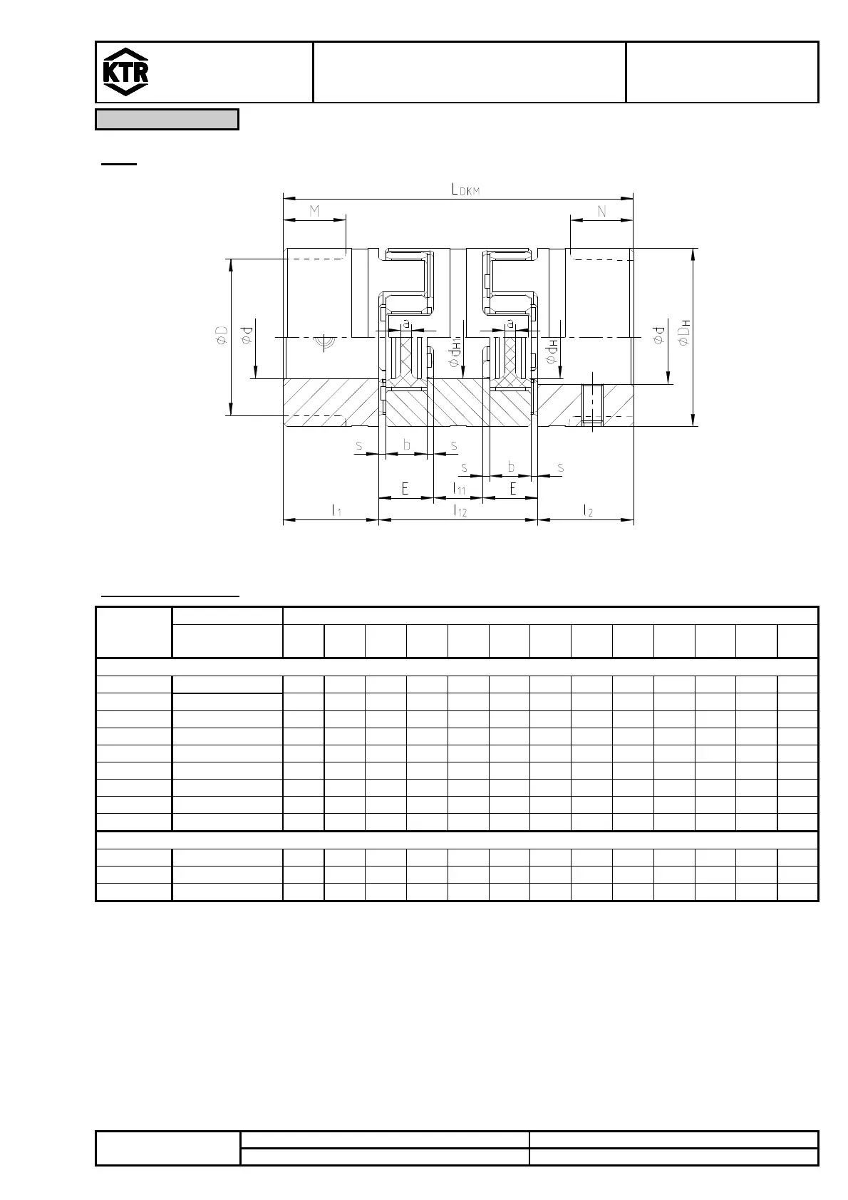
Technical Data
DKM
Illustration 6: ROTEX
®
GS, DKM
Table 8: Dimensions
ROTEX
®
GS
Size
Finish bore Dimensions [mm]
d
max.
1)
D D
H
d
H
d
H1
l
1
; l
2
M; N
l
11
l
12
L
DKM
E b s a
Hub material - Aluminium (Al-H) Spacer material - Aluminium (Al-H)
5 5 - 10
- - 5 - 3 13
23
5 4 0,5
4,0
7 7 - 14
- - 7 - 4 20
34
8 6 1,0
6,0
9 11 - 20
7,2
- 10
- 5 25
45
10
8 1,0
1,5
12 12 - 25
8,5
- 11
- 6 30
52
12
10
1,0
3,5
14 16 - 30
10,5
- 11
- 8 34
56
13
10
1,5
2,0
19 24 - 40
18
18
25
- 10
42
92
16
12
2,0
3,0
24 28 - 55
27
27
30
- 16
52
112
18
14
2,0
3,0
28 38 - 65
30
30
35
- 18
58
128
20
15
2,5
4,0
38 45 - 80
38
38
45
- 20
68
158
24
18
3,0
4,0
Hub material - Steel (St-H) Spacer material - Aluminium (Al-H)
42 55 85
95
46
46
50
28
22
74
174
26
20
3,0
4,0
48 62 95
105
51
51
56
32
24
80
192
28
21
3,5
4,0
55 74 110
120
60
60
65
37
28
88
218
30
22
4,0
4,5
1) depend on hub type

Other manuals for KTR ROTEX GS

Related product manuals