EasyManua.ls Logo

Labrie Optimizer - Main Hydraulic Schematic

Labrie Optimizer
81 pages
Print Icon
To Next Page IconTo Next Page
To Next Page IconTo Next Page
To Previous Page IconTo Previous Page
To Previous Page IconTo Previous Page
Loading...
OPTIMIZER
TM
60
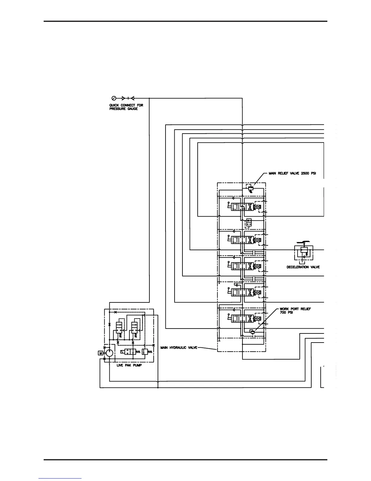
3.4 MAIN HYDRAULIC SCHEMATIC

Table of Contents

Related product manuals