EasyManua.ls Logo

Lenze 8400 motec - Definition of the notes used

Lenze 8400 motec
74 pages
To Next Page IconTo Next Page
To Next Page IconTo Next Page
To Previous Page IconTo Previous Page
To Previous Page IconTo Previous Page
Loading...
Product description
Connections and interfaces
14
Lenze · Decentralised frequency inverter 8400 motec (AS-Interface option) · EDS84DMOTASI EN 4.0 - 09/2013
_ _ _ _ _ _ _ _ _ _ _ _ _ _ _ _ _ _ _ _ _ _ _ _ _ _ _ _ _ _ _ _ _ _ _ _ _ _ _ _ _ _ _ _ _ _ _ _ _ _ _ _ _ _ _ _ _ _ _ _ _ _ _ _
3.3 Connections and interfaces
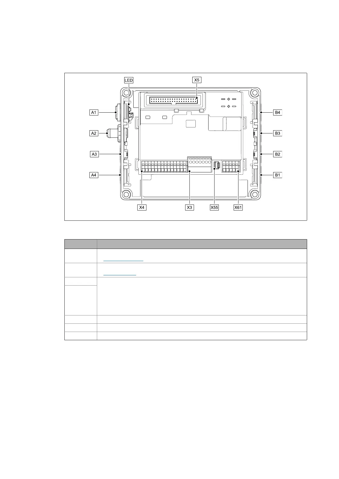
[3-1] Communication Unit AS-Interface
E84DG018
Pos. Description
A1 / LED Position of LEDs for AS-i status display
LED status displays
( 53)
A2 AS-i terminal (M12 pins, 5-pole)
AS-i connection
( 22)
A3 / A4 Positions for further freely designable inputs and outputs:
Digital inputs
•Digital output
Analog input (only for E84DGFCAxJx)
Relay output (only for E84DGFCAxJx)
Connection of "Safety Option" safety system (only for E84DGFCAxJx)
B1 ... B4
X3 / X4 / X61 Terminal strips for wiring the terminals at A2 ... A4 and B1 ... B4
X5 Plug connector for connection to the Drive Unit
X55 Plug connector for the wiring of the LEDs to A1

Table of Contents

Other manuals for Lenze 8400 motec

Related product manuals