EasyManua.ls Logo

Leuze electronic BPS 34 - Dimensioned Drawings

Leuze electronic BPS 34
106 pages
Print Icon
To Next Page IconTo Next Page
To Next Page IconTo Next Page
To Previous Page IconTo Previous Page
To Previous Page IconTo Previous Page
Loading...
Technical data of BPS 34
Leuze electronic BPS 34 15
TNT 35/7-24V
Table 4.1: General specifications
Note!
The warm-up time before devices with integrated heating are ready for operation is
approx. 30min. (depending on the environmental conditions).
For devices with integrated heating (…H models), window heating is in constant operation.
Regulation of device-internal heating is temperature dependent.
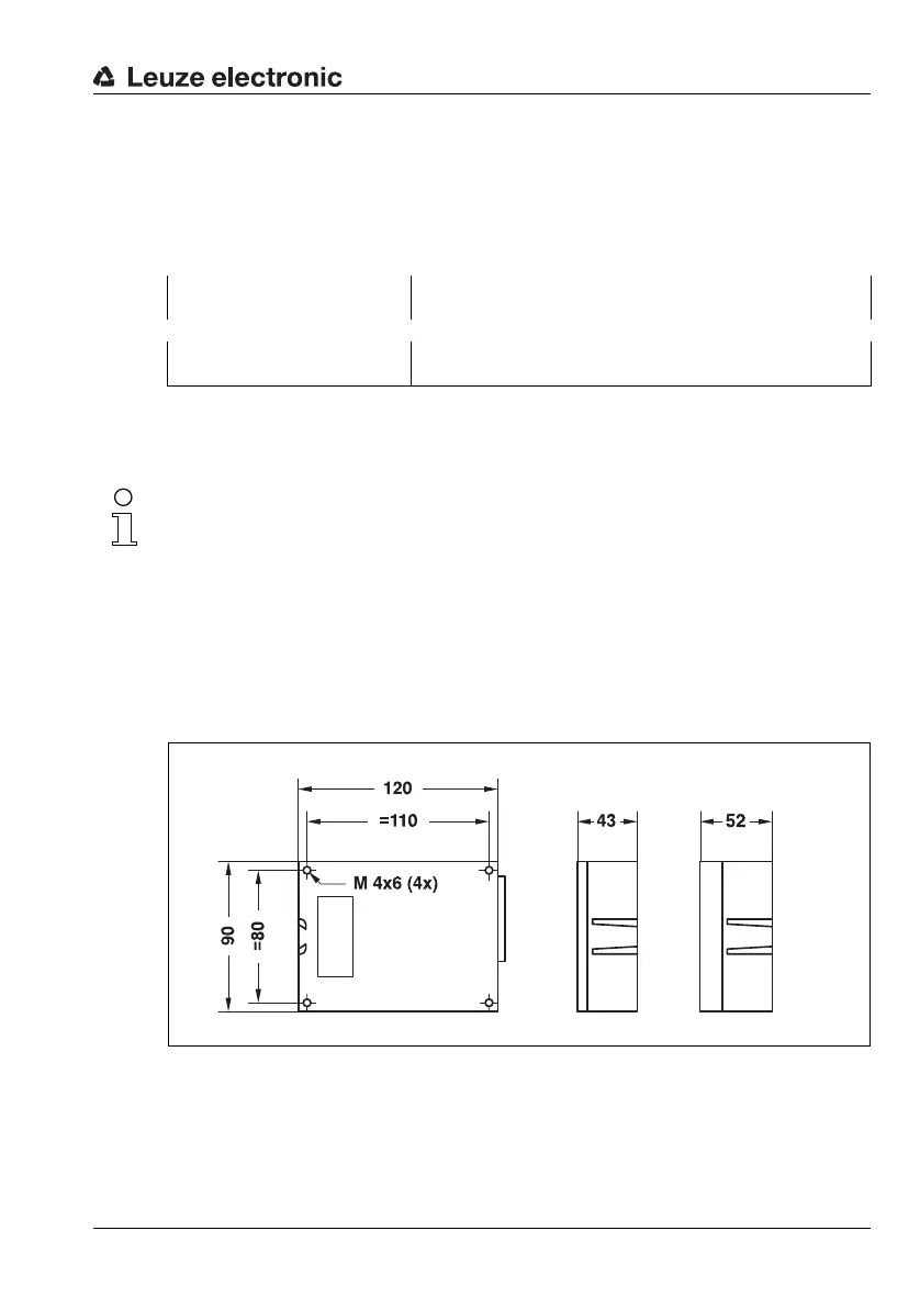
4.2 Dimensioned drawings
BPS 34 SM 100 / BPS 34 SM 100 H / BPS 34 SM 100 HT
Figure 4.1:BPS 34 dimensioned drawing
Vibration IEC 60068-2-6, test Fc
Shock IEC 60068-2-27, test Ea
Continuous shock IEC 60068-2-29, test Eb
Electromagnetic compatibility EN 55022, EN 55024, EN 61000-4-2, -3, -4 and -6,
EN 61000-6-2 and -3
1)
Bar code tape
Max. length (measurement
length)
10000 m
Ambient temperature -40 °C -120 °C
Mech. properties Scratch and wipe resistant, UV resistant,
moisture resistant, partly chemical resistant
1) To ensure consistent heat emission
2) With MS 34 10x plugged in and M12 connectors/caps screwed into place
Top view
(without heat-
ing)
Rear view
all dimensions in mm
Top view
(with heating)

Table of Contents