EasyManua.ls Logo

Leuze electronic BPS 34 - BPS 34 Reading Field Curve

Leuze electronic BPS 34
106 pages
Print Icon
To Next Page IconTo Next Page
To Next Page IconTo Next Page
To Previous Page IconTo Previous Page
To Previous Page IconTo Previous Page
Loading...
Technical data of BPS 34
22 BPS 34 Leuze electronic
Connecting the switching input / switching output
The BPS 34 is provided with a switching input and a switching output. The connection is
performed as shown in Figure 4.8:
Figure 4.8:Connecting the switching input / switching output of the BPS 34
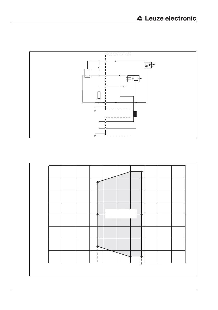
4.3.5 BPS 34 reading field curve
Figure 4.9:BPS 34 reading field curve
SWIN4
V OUT1
GND3
PE5
SW OUT2
max.
100 mA
GND IN3
V IN1
A
Sensor
SW IN/OUT connector
PWR plug
-80
-60
-40
-20
0
20
40
60
80
0
25 75 125 17550 100 17090 150 200
250
225
Reading distance [mm]
Reading field width [mm]
Working range
BPS 34

Table of Contents