EasyManua.ls Logo

LNS Alpha 552 - Page 13

LNS Alpha 552
118 pages
Print Icon
To Next Page IconTo Next Page
To Next Page IconTo Next Page
To Previous Page IconTo Previous Page
To Previous Page IconTo Previous Page
Loading...
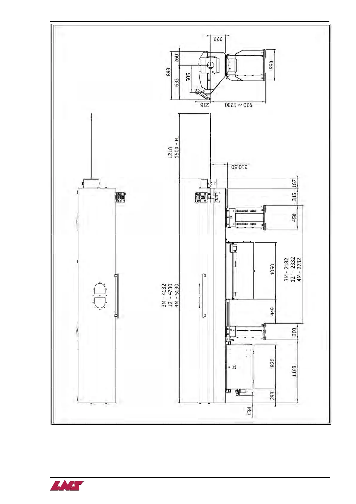
CHAPTER 2: TECHNICAL DATA 2-3
ALPHA 552

Related product manuals