EasyManua.ls Logo

LSIS XBC-DR14E - Point Relay Output Module

LSIS XBC-DR14E
384 pages
To Next Page IconTo Next Page
To Next Page IconTo Next Page
To Previous Page IconTo Previous Page
To Previous Page IconTo Previous Page
Loading...
Chapter 7 Input/Output Specifications
7-62
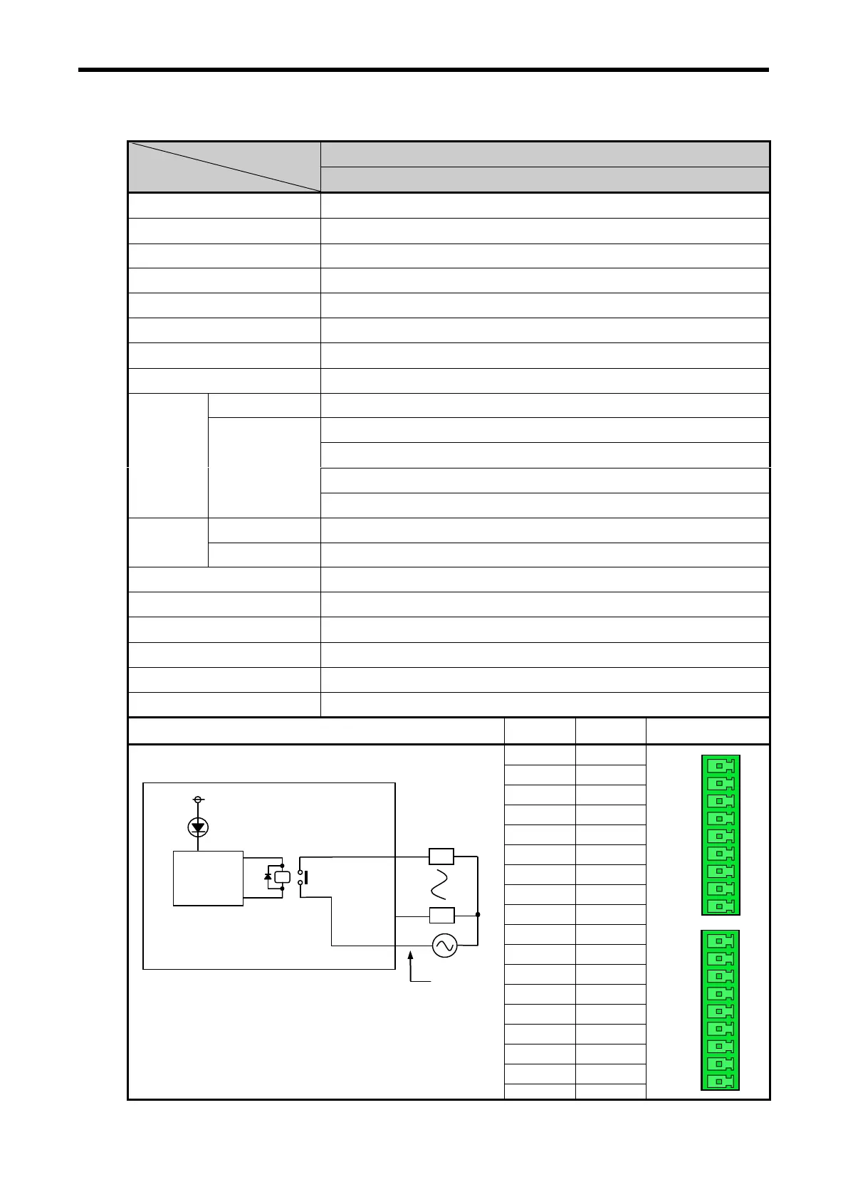
7.5.3 16 point relay output module
Model
Specification
Relay output module
XBE-RY16A
Output point
16 point
Insulation method
Relay insulation
Rated load voltage/ current
DC24V 2A (Resistive load) / AC220V 2A (COS = 1), 5A/COM
Min. load voltage/current
DC5V / 1
Max. load voltage/current
AC250V, DC125V
Off leakage current
0.1 (AC220V, 60 )
Max. On/Off frequency
3,600 times/hr
Surge absorber
None
Service
life
Mechanical
20 millions times or more
Electrical
Rated load voltage / current 100,000 times or more
AC200V / 1.5A, AC240V / 1A (COS = 0.7) 100,000 times or more
AC200V / 1A, AC240V / 0.5A (COS = 0.35) 100,000 times or more
DC24V / 1A, DC100V / 0.1A (L / R = 7 ) 100,000 times or more
Response
time
Off On
10 or less
On Off
12 or less
Common method
8 point / COM
Proper cable size
Stranded cable 0.3~0.75 (External diameter 2.8 or less)
Current consumption
420 (when all point On)
Operation indicator
Output On, LED On
External connection method
9 point terminal block connector x 2 ea
Weight
130g
Circuit configuration
No.
Contact
Type
TB1
0
TB2
1
TB3
2
TB4
3
TB5
4
TB6
5
TB7
6
TB8
7
TB9
COM
TB1
8
TB2
9
TB3
A
TB4
B
TB5
C
TB6
D
TB7
E
TB8
F
TB9
COM
RY
Internal
circuit
L
Terminal block no.
L
E
D
TB1
TB9
L
TB8
TB1
TB2
TB3
TB4
TB5
TB6
TB7
TB8
TB9
TB1
TB2
TB3
TB4
TB5
TB6
TB7
TB8
TB9
DC5V
www.behaotomasyon.com
www.behaotomasyon.com

Table of Contents

Related product manuals