EasyManua.ls Logo

LSIS XBC-DR14E - Point Transistor Output Module (Sink Type)

LSIS XBC-DR14E
384 pages
To Next Page IconTo Next Page
To Next Page IconTo Next Page
To Previous Page IconTo Previous Page
To Previous Page IconTo Previous Page
Loading...
Chapter 7 Input/Output Specifications
7-63
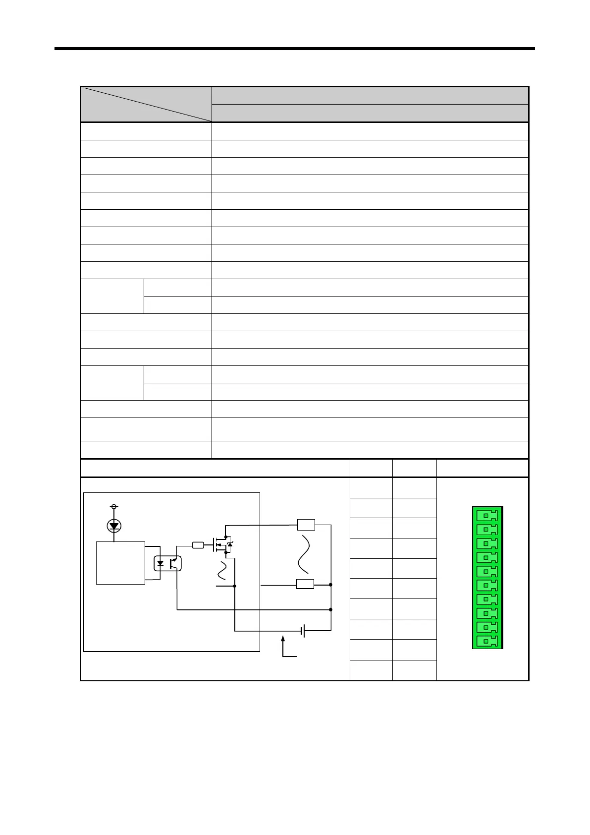
7.5.4 8 point transistor output module (Sink type)
Model
Specification
Transistor output module
XBE-TN08A
Output point
8 point
Insulation method
Photo coupler insulation
Rated load voltage
DC 12 / 24V
Load voltage range
DC 10.2 ~ 26.4V
Max. load voltage
0.5A / 1 point
Off leakage current
0.1 or less
Max. inrush current
4A / 10 or less
Max. voltage drop (On)
DC 0.4V or less
Surge absorber
Zener Diode
Response
time
Off On
1 or less
On Off
1 or less (Rated load, resistive load)
Common method
8 point / COM
Proper cable size
Stranded cable 0.3~0.75 (External diameter 2.8 or less)
Current consumption
40 (when all point On)
External
power
supply
Voltage
DC12/24V 10% (ripple voltage 4 Vp-p or less)
Current
10 or less (DC24V connection)
Operation indicator
Output On, LED On
External connection
method
10 point terminal block connector
Weight
53
Circuit configuration
No.
Contact
Type
TB01
0
TB02
1
TB03
2
TB04
3
TB05
4
TB06
5
TB07
6
TB08
7
TB09
DC12
/24V
TB10
COM
TB01
TB02
TB03
TB04
TB05
TB06
TB07
TB08
TB09
TB10
Terminal block no.
DC12/24V
R
Internal
circuit
L
L
E
D
TB01
TB09
L
TB08
TB10
DC5V
www.behaotomasyon.com
www.behaotomasyon.com

Table of Contents

Related product manuals