EasyManua.ls Logo

LSIS XBC-DR14E - Point Transistor Output Module (Source Type)

LSIS XBC-DR14E
384 pages
To Next Page IconTo Next Page
To Next Page IconTo Next Page
To Previous Page IconTo Previous Page
To Previous Page IconTo Previous Page
Loading...
Chapter 7 Input/Output Specifications
7-67
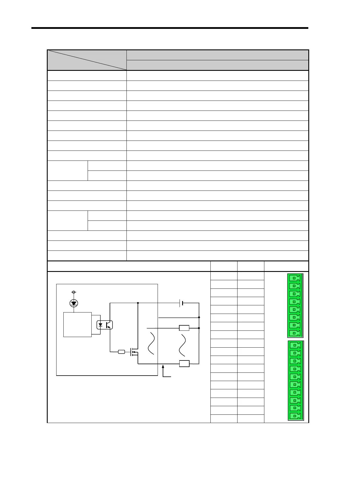
7.5.8 16 point transistor output module (Source type)
Model
Specification
Transistor output module
XBE-TP16A
Output point
16 point
Insulation method
Photo coupler insulation
Rated load voltage
DC 12 / 24V
Load voltage range
DC 10.2 ~ 26.4V
Max. load voltage
0.5A / 1 point, 2A / 1COM
Off leakage current
0.1 or less
Max. inrush current
4A / 10 or less
Max. voltage drop (On)
DC 0.4V or less
Surge absorber
Zener Diode
Response
time
Off On
1 or less
On Off
1 or less (Rated load, resistive load)
Common method
16 point / COM
Proper cable size
Stranded cable 0.3~0.75 (external diameter 2.8 or less)
Current consumption
60 (When all outputs are on)
External
power
Voltage
DC12/24V 10% (ripple voltage 4 Vp-p or less)
Current
10 or less (connecting DC24V)
Operation indicator
LED On when output On
External connection method
8 pin terminal block connector + 10 pin terminal block connector
Weight
40g
Circuit configuration
No.
Contact
Type
TB01
0
TB02
1
TB03
2
TB04
3
TB05
4
TB06
5
TB07
6
TB08
7
TB01
8
TB02
9
TB03
A
TB04
B
TB05
C
TB06
D
TB07
E
TB08
F
TB09
COM
TB10
0V
DC5V
DC12/24V
R
Internal
circuit
L
Terminal
block no.
LED
TB09
L
TB10
TB01
0
TB08
TB01
TB02
TB03
TB04
TB05
TB06
TB07
TB08
TB09
TB10
TB01
TB02
TB03
TB04
TB05
TB06
TB07
TB08
www.behaotomasyon.com
www.behaotomasyon.com

Table of Contents

Related product manuals