EasyManua.ls Logo

Mec 2033ES - Page 81

Mec 2033ES
260 pages
Print Icon
To Next Page IconTo Next Page
To Next Page IconTo Next Page
To Previous Page IconTo Previous Page
To Previous Page IconTo Previous Page
Loading...
"2033ES / 2633ES" Service & Parts Manual - ANSI Specifications October 2008
Page 5-5
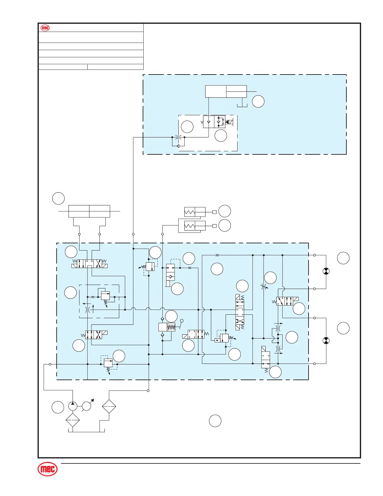
ART_2195 R1965
HYDRAULIC SCHEMATIC
1532ES | 9001100 -
Model: / Serial #
Publication Art #:Reference Art #:
1932ES | 9105000 -
2033ES | 8804100 -
2633ES | 1100600 -
MA−2
LIFT CYLINDER
STEERING
CYLINDER
BRAKES
LEFT
WHEEL
MOTOR
RIGHT
WHEEL
MOTOR
S1
S3
S2
S4
SV9
WB1
WB2
SV1
FRR1
SV2
P1
RV2
CBV1
RV1
RV1
ORF2
ORF1
MV1
HP1
SV5
SV3
SV6
SV4
FD1
NV1
WM1
WM2
ORF3
CYL2
CYL1
ø.052
ø.040
ø.040
3
21
11
9
10
8
51276
E
2750 PSI
1500 PSI
PSI
(see
below)
2033ES: 2100 PSI
2633ES: 2750 PSI
1532ES: 2400 PSI
1932ES: 2400 PSI
1.0 GPM
850 PSI
MA−1

Table of Contents

Related product manuals