EasyManua.ls Logo

Mec 2033ES - Page 89

Mec 2033ES
260 pages
Print Icon
To Next Page IconTo Next Page
To Next Page IconTo Next Page
To Previous Page IconTo Previous Page
To Previous Page IconTo Previous Page
Loading...
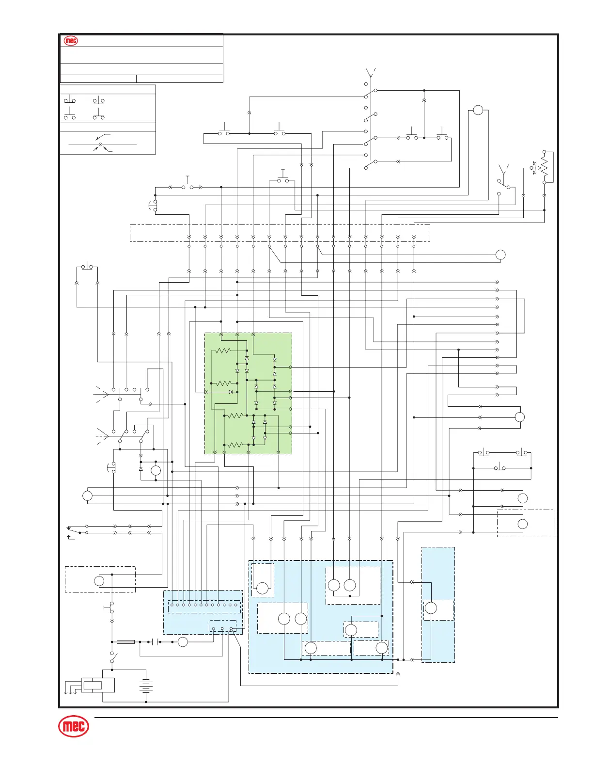
"2033ES / 2633ES" Service & Parts Manual - ANSI Specifications October 2008
Page 5-13
2208-R1
1007
ELECTRIC SCHEMATIC
Model: / Serial #
Publication Art #:Reference Art #:
2033ES | 8804100 -
2633ES | 11100600 -
5A
SOL11
SV9
DOWN
LIFT
CYLINDER
MANIFOLD
LS3
MC1
A9
SOL4
SOL1 SOL2
SOL3
SOL5
SOL6
SOL7 SOL8
M1
A11
MODE SELECT SWITCH
S6
HORN
A5
ENABLE
S3
ES2
EMERGENCY
STOP
DRIVE LIFT
TILT
LIGHT
REV/LIFT
FWD/DOWN
3
3A
4
4
8
6
6
12
3
S
12
7
1
3
2
R2
R3
R4
D8
D15
D14
D9
D11
D10
10
4
D1 D2
D3 D4
D12
D7
D13
D5
R1
13
2
S2
UP
DOWN
22
LS1 (SLOW SPEED)
11 6
95
8
14
P1−1
P5−4 P5−5
P5−6
P5−10
P5−2
P5−9
P5−8
P3−3P3−2
P5−7
P1−2 P1−3 P1−4 P1−5 P1−6 P1−7
P3−7
P3−8
P3−1
P12−2 P3−6 P5−12
P12−1 P3−5 P5−11
P5−1
CB1
CIRCUIT
BREAKER
OPTIONAL
BATTERY
GAUGE
CHRL 1
P3−4
P3−19
P3−10
P3−11
P3−13
P3−9
LS2
SV2
SV5
SV6
SV4
SV1
STEER
DRIVE
SV3
LS1
P9−1
LIFT
PWM
J−5
MC1
F1
CH1
RIGHT
LEFT
BRAKE/DECEL
MAIN MANIFOLD
TORQUE
TORQUE
REV
FWD
P9−2
P3−15
P1−8 P1−9 P1−10 P1−11 P1−12 P2−1 P2−2
P6−1
P6−2
P6−3
P6−4
P6−5
P6−6
P6−7
P6−8
P6−9
P6−10
P6−11
P6−12
P14−1
P14−2
P3−20
P3−21
P3−15
P4−1
P4−3
P4−2
RED
BLK
LEVEL
SENSOR
MOTION
ALARM
OPTIONAL
MOTION
LIGHT
WHT
P2−3
NURWTJCFHPAVKL
9
15
9
12
A1
A6
A3
A7
A8
HORN
OPTION
8
7
3
2
11
12
ON OFF
POT1
TORQUE
S9
9
31
32
3
S4
S5
S7
S8
RIGHT
LEFT
3A
10
5
5
11
OPTIONAL
QUICK DISCONNECT
103
S1
D17
ES1
PLATFORM
BASE
OFF
P5−3
EMERGENCY
STOP
HOUR
METER
J-1
CIRCUIT
BOARD
11
12
10
9
8
7
6
5
4
3
1
2
12345678910
41
4
12
15A
PNG
15
M2
105
104
104
104
104A
15
BD1
200 AMP
15 AMP
CHRL 1
B+
B−
B1−B4
3456789101112
22
17A
18
3
21
16
41
14
78
19
13
13
15A
10 11
11 12 13 14 15(–)
22
16
17
15
103
5
4
101
15
14
9
4
2
5
20A
20
5A
17A
17
12A
12A
15
151
15A
20
15A
103
15A
103
12A
15
22
6
CHARGER
INTERLOCK
SWITCH CONTACT POSITIONS
N/C
N/O
N/C HELD OPEN
N/O HELD CLOSED
P1−1
WIRE CONNECTOR LEGEND
TERMINAL #
FEMALE SOCKET
MALE PIN

Table of Contents

Related product manuals