EasyManua.ls Logo

Mitsubishi Electric Melservo-J5 MR-J5 Series - Page 234

Mitsubishi Electric Melservo-J5 MR-J5 Series
446 pages
To Next Page IconTo Next Page
To Next Page IconTo Next Page
To Previous Page IconTo Previous Page
To Previous Page IconTo Previous Page
Loading...
232
6 OPTIONS AND PERIPHERAL EQUIPMENT
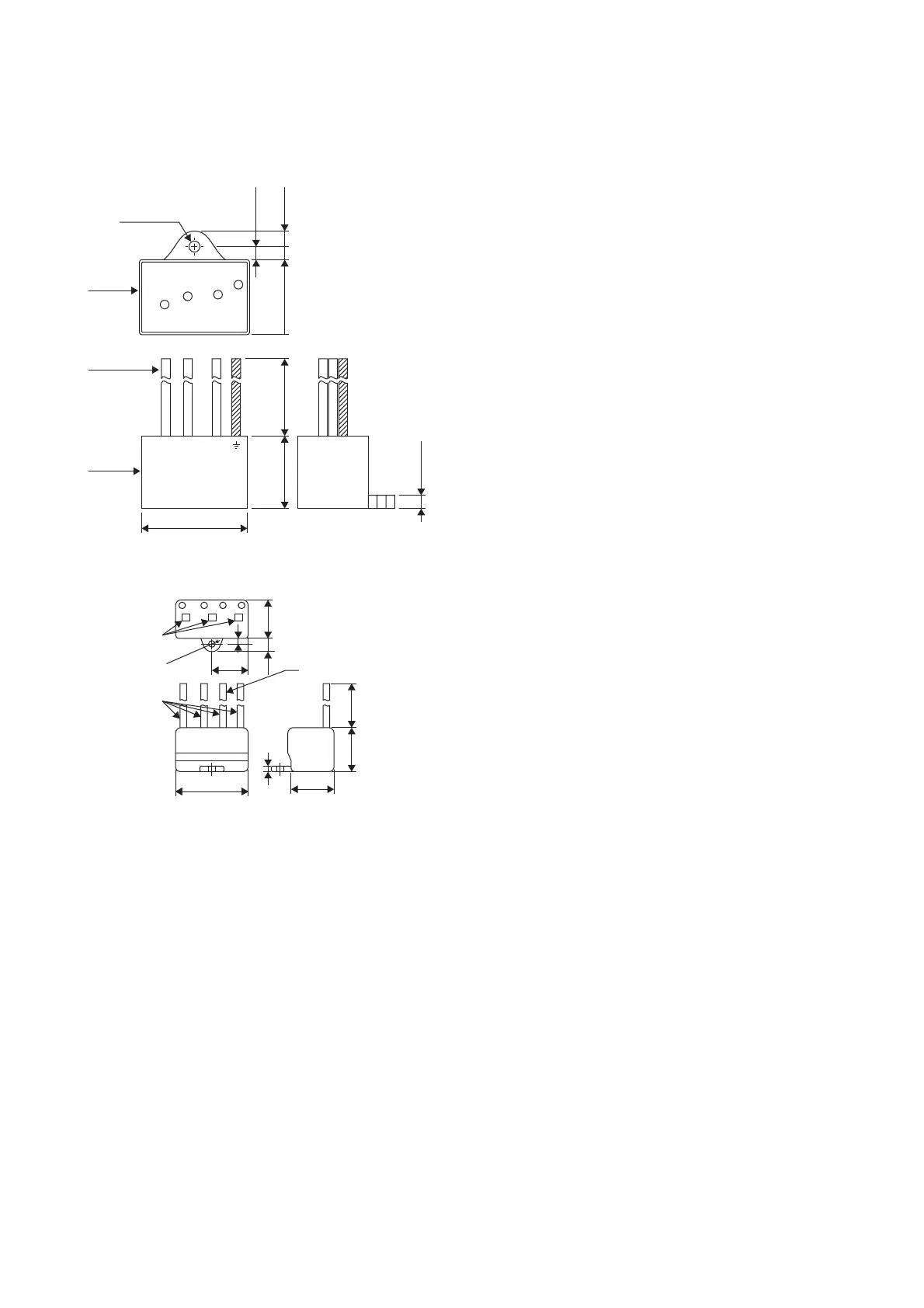
6.16 EMC filter (recommended)
Surge protector (recommended)
For details on surge protectors, refer to "EMC Installation Guidelines".
RSPD series (Okaya Electric Industries)
[Unit: mm]
LT-CS-WS series (Soshin Electric)
41 ± 1
28.5 ± 1 28 ± 1
4.2 ± 0.5
5.5 ± 1
11 ± 1
+30
0
200
4.5 ± 0.5
132
Resin
Lead
Case
19
38
28
250
22.5
8.5 25
4
4.3
4
Operation
status display
Vinyl wire
Grounding wire

Table of Contents

Related product manuals