EasyManua.ls Logo

Mitsubishi Q01CPU - Page 133

Mitsubishi Q01CPU
732 pages
To Next Page IconTo Next Page
To Next Page IconTo Next Page
To Previous Page IconTo Previous Page
To Previous Page IconTo Previous Page
Loading...
4
HARDWARE SPECIFICATIONS OF THE CPU MODULE
4.2 Basic Model QCPU
4.2.1 Part Names
4 - 23
1
OVERVIEW
2
SYSTEM
CONFIGURATION
3
GENERAL
SPECIFICATIONS
4
HARDWARE
SPECIFICATIONS OF
THE CPU MODULE
5
POWER SUPPLY
MODULE
6
BASE UNIT AND
EXTENSION CABLE
7
MEMORY CARD AND
BATTERY
8
CPU MODULE START-
UP PROCEDURES
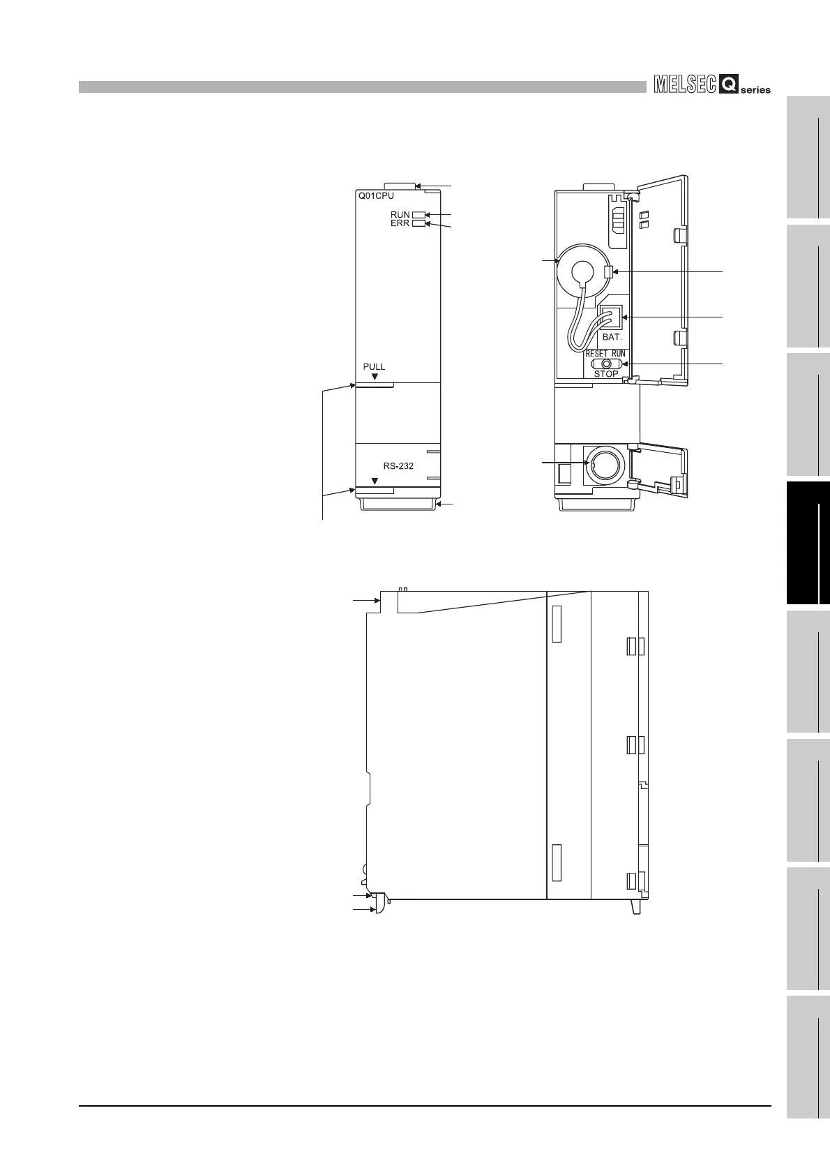
(2) Q00CPU, Q01CPU
Diagram 4.3 Front face Diagram 4.4 With front cover open
Diagram 4.5 Side Face
1)
2)
3)
4)
When opening the cover, put
your finger here.
7)
8)
6)
5)
9)
10)
11)
12)

Table of Contents

Related product manuals