EasyManua.ls Logo

Mitsubishi Q01CPU - Page 248

Mitsubishi Q01CPU
732 pages
Print Icon
To Next Page IconTo Next Page
To Next Page IconTo Next Page
To Previous Page IconTo Previous Page
To Previous Page IconTo Previous Page
Loading...
10 - 4
10.1 General Safety Requirements
10
LOADING AND INSTALLATION
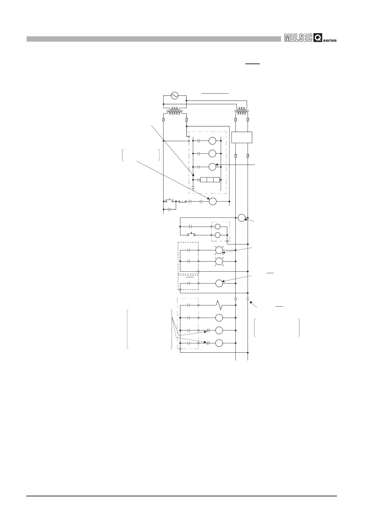
(2) System design circuit example (when using ERR terminal of power
supply module)
Diagram 10.2 System design circuit example
The power-ON procedure is as follows:
For AC/DC
1) Turn power ON.
2) Set CPU to RUN.
3) When DC power is established, RA2 goes ON.
4) Timer (TM) times out after the DC power reaches 100%. (The TM set value should be the period of time from when RA2
goes ON to the establishment of 100% DC voltage. Set this value to approximately 0.5s.)
5) Turn ON the start switch.
6) When the magnetic contactor (MC) comes on, the output equipment is powered and may be driven by the program. (If a
voltage relay is used at RA2, no timer (TM) is required in the program.)
MC
RA1
RA2
XM
Ym
MC2
MC1
M10
NO
MC MC
SM52
XM
TM
ERR
SM403
RA3
Yn
Power supply
FOR AC/DC
Input switched
when power supply
established.
RUN/STOP circuit
interlocked with RA1
(run monitor relay)
Power supply module
Interlock circuits as
necessary.
Provide external
interlock circuits for
conflicting operations,
such as forward rotation
and reverse rotation, and
for parts that could
damage the machine or
cause accidents if no
interlock were used.
Transformer
Fuse
Transformer
Fuse
CPU module
START SW
STOP SW
Program
Output module
Output module
DC power
Fuse
Set time for DC power
supply to be established.
Voltage relay is
recommended
Low battery alarm
(Lamp or buzzer)
OFF at ERR contact OFF
(stop error occurrence)
In the case of an
emergency stop or a
stop caused by a limit
switch.
MC
RA2
L
MC1
RA3
MC2
Ym
TM
MC1 NO M10
(-) (+)
Yn
RA1
Output by ERR contact OFF
Power OFF of equipment

Table of Contents

Related product manuals