EasyManua.ls Logo

Muller 6609d - Page 33

Muller 6609d
55 pages
Print Icon
To Next Page IconTo Next Page
To Next Page IconTo Next Page
To Previous Page IconTo Previous Page
To Previous Page IconTo Previous Page
Loading...
Mod. 6609d-6612d: Automatic Forms Cutter 13.12.2006
-33-
Unoccupied positions in a list should be filled using the command Fill up.
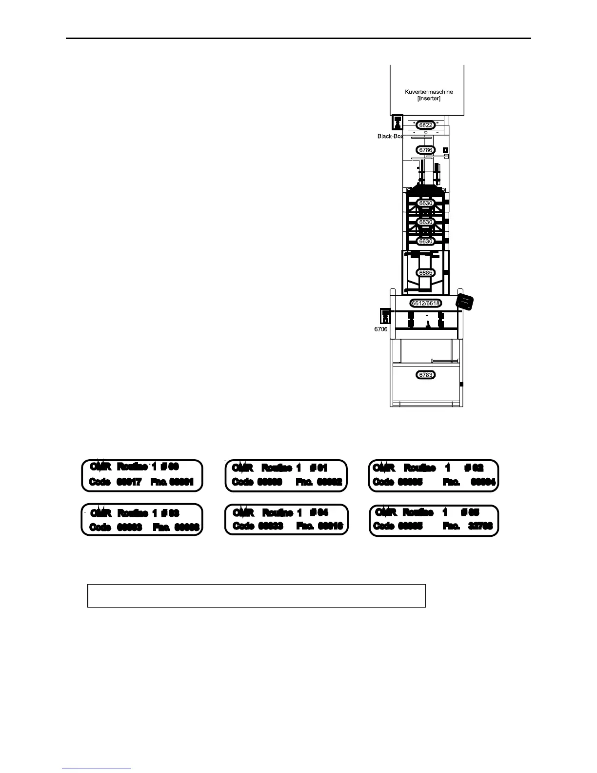
The 5-digit code number for enveloping and AL is thus 00017.
Let us now consider the whole block of marks as a complete
unit. The adjustment line contains the first mark, since it is the
first to pass the reading head. Deflector unit 2 is thus the
second mark, and so on. We can use Table 1 to find the
appropriate 5-digit code number for any combinatio n of marks.
In example 1 these are:
1. AL + Collector = 00009
2. AL + Enveloping = 00017
3. AL + Deflector unit 1 = 00005
4. AL + Deflector unit 2 = 00003
5. AL + Deflector unit 3 = 00033
6. AL + Stop = 00065
When entering the above code numbers make sure that the
positions are entered in the OMR routine in ascendi ng order. A
maximum of 33 positions can be entered.
In our example six positions have been filled by en tering all the
combinations that occur. In order for the machine to work
correctly, the remaining positions in this routine must also be
filled with the command Fill up (from #06 - #31).
The 5-digit code numbers worked out using this method are
entered under “Code” when programming the reader. In
example 1 input should be carried out as follows (input for the
function is described below):