EasyManua.ls Logo

MV Heating MV Airo 2 - Wiring Diagram; Brushless Version Wiring

MV Heating MV Airo 2
46 pages
Print Icon
To Next Page IconTo Next Page
To Next Page IconTo Next Page
To Previous Page IconTo Previous Page
To Previous Page IconTo Previous Page
Loading...
+44 (0)23 8052 2345
23
MV Heating UK Ltd
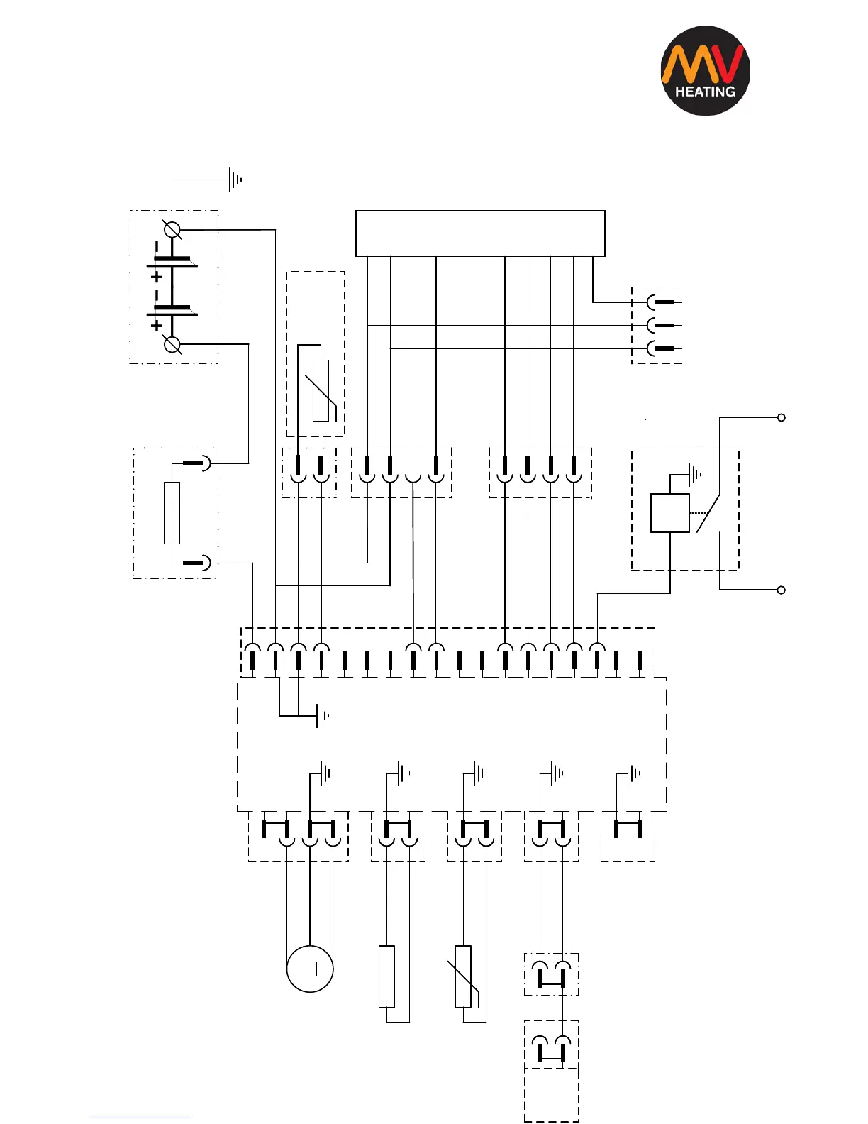
M
Black
Red
Brown
Yellow 1.2
Yellow 1.2
Black 0.6
Black 0.6
Fuel
Pump
Blue 0.22
Blue 0.22
Fan Motor
Glow Plug
Flame sensor
Overheating
Sensor
X2
X3
X4
X5
X6
Controller
ECU
Battery
X1
X9
4
5
1
3
10
7
9
2
12
6
11
17
18
Control switch
Red 0.3
Grey 0.3
Black 0.3
Blue 0.3
4
3
2
1
Red 2.5
Brown 2.5
Blue/White 0.3
Red/White 0.3
Red 0.3
Grey 0.3
Black 0.3
Blue 0.3
Black/Red
Automobile
Exhaust Fan
VDD
VCC
Swim
Indicator Light
Convector
Activate
Brown 2.5
X10
Red/Yellow 0.3
Brown 0.3
Yellow 0.3
Remote Control
Or GSM module
socket
12V =25A
24V = 15A
Main fuse
Red 2.5
12V / 24V
12V =25A
24V = 15A
Main fuse
Red 2.5
12V / 24V
8
13
14
15
16
1
2
3
4
1
2
2
1
1
2
NRST
GND
X10
Red/Yellow 0.3
Brown 0.3
Red/White 0.3
1
2
3
4
External
Temperature
Sensor
X8
Brown
Blue
GND
VCC
M
Black
Red
Brown
Yellow 1.2
Yellow 1.2
Black 0.6
Black 0.6
Fuel
Pump
Blue 0.22
Blue 0.22
Fan Motor
Glow Plug
Flame sensor
Overheating
Sensor
X2
X3
X4
X5
X6
Controller
ECU
Battery
X1
X9
4
5
1
3
10
7
9
2
12
6
11
17
18
Control switch
Red 0.3
Grey 0.3
Black 0.3
Blue 0.3
4
3
2
1
Red 2.5
Brown 2.5
Blue/White 0.3
Red/White 0.3
Red 0.3
Grey 0.3
Black 0.3
Blue 0.3
Black/Red
Automobile
Exhaust Fan
VDD
VCC
Swim
Indicator Light
Convector
Activate
Brown 2.5
X10
Red/Yellow 0.3
Brown 0.3
Yellow 0.3
Remote Control
Or GSM module
socket
12V =25A
24V = 15A
Main fuse
Red 2.5
12V / 24V
8
13
14
15
16
1
2
3
4
1
2
2
1
1
2
NRST
GND
X10
Red/Yellow 0.3
Brown 0.3
Red/White 0.3
1
2
3
4
External
Temperature
Sensor
X8
Brown
Blue
GND
VCC
MV Airo2 Wiring Diagram Brushless Version
Figure XXI

Other manuals for MV Heating MV Airo 2