EasyManua.ls Logo

Nibe FIGHTER 1220 - Installer: Technical Data and Components; Dimensions and Installation Layout

Nibe FIGHTER 1220
60 pages
Print Icon
To Next Page IconTo Next Page
To Next Page IconTo Next Page
To Previous Page IconTo Previous Page
To Previous Page IconTo Previous Page
Loading...
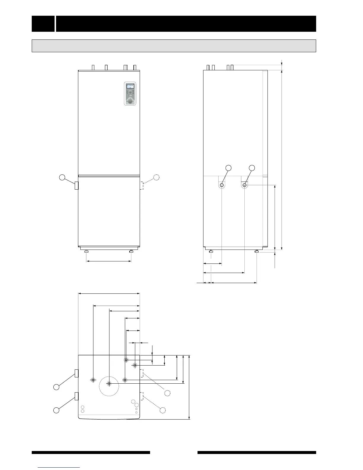
Dimensions
FIGHTER 1220
For the Installer
44
Dimensions and setting-out coordinates
Leave space free to the right
of the heat pump for servic-
ing.
An area of 800 mm is
required in front of FIGHTER
1215d for service work.
When FLM 30 is fitted on
FIGHTER 1215 the distance
to the wall should be 50 mm.
598
179
525
525
30
399
454
144
321
46
99
242
288
625
30 50 630
1745 50
132
47
5 5
54
4
5
4
5
A BI II III I II I II
50.0 C
Varmvattentemp. 1.0
A B
A B

Table of Contents

Other manuals for Nibe FIGHTER 1220

Related product manuals