EasyManua.ls Logo

Noble UH30-E - UH30-E-SEER Dimensions

Noble UH30-E
66 pages
Print Icon
To Next Page IconTo Next Page
To Next Page IconTo Next Page
To Previous Page IconTo Previous Page
To Previous Page IconTo Previous Page
Loading...
3
07610-004-45-09-D
SPECIFICATIONS
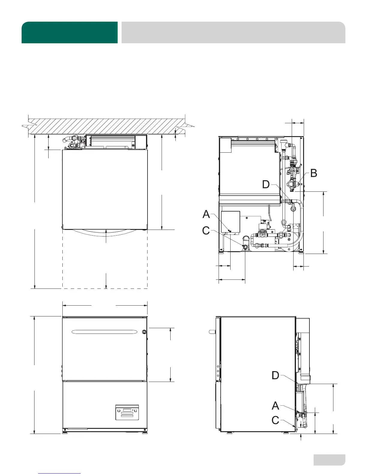
UH30-E-SEER DIMENSIONS
LEGEND
A - Electrical Connection
B - Water Inlet (with 6' Hose)
(3/4" Male GHT, connect to true
1/2" ID line, 40-90 °F)
All dimensions from the oor can be increased 1" using the machine's adjustable feet.
C - Drain Connection
(1" ID, 1 3/8" OD)
(Connect to MIN 1 1/2" Drain with Air-gap)
D - Chemical Port
17 1/2
[445 mm]
BACK
SIDEFRONT
TOP
1/4
[7 mm]
26 7/8
[692 mm]
3 1/2
[88 mm]
24 1/4
[615 mm]
3 3/8
[87 mm]
4 3/8
[110 mm]
14 1/4
[363 mm]
7 1/2
[190 mm]
1 3/4
[44 mm]
6
[152 mm]
3
[76 mm]
43 5/8
[1108 mm]
16 3/4
[426 mm]
DOOR OPEN
33 5/16
[846 mm]
14 1/4
[362 mm]
CLEARANCE
LEGEND
A - Electrical Connection
B - Water Inlet (with 6' Hose)
(3/4" Male GHT, connect to true
1/2" ID line, 40-90 °F)
C - Drain Connection
(1" ID, 1 3/8" OD)
(Connect to MIN 1 1/2" Drain with Air-gap)
D - Chemical Port
All dimensions from the floor can be increased 1” using the machine’s adjustable feet.

Related product manuals