EasyManua.ls Logo

Olivetti d-Copia 3003MF - Detaching and Refitting the Control PWB; Pwbs

Olivetti d-Copia 3003MF
257 pages
Print Icon
To Next Page IconTo Next Page
To Next Page IconTo Next Page
To Previous Page IconTo Previous Page
To Previous Page IconTo Previous Page
Loading...
2MH/2MJ/2MK/2ML
1-5-37
1-5-9 PWBs
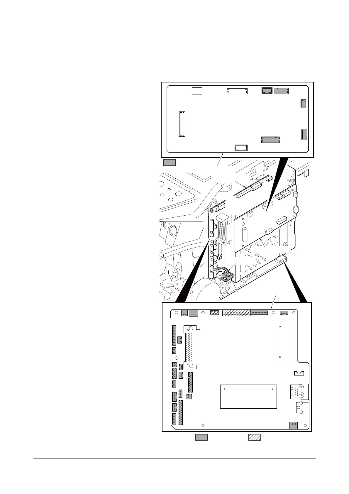
(1) Detaching and refitting the control PWB
Procedure
1. Remove the FAX control PWB.
(See page 1-5-48)
2. Remove the right cover.
(See page 1-5-3)
3. Remove the five connectors from the
scanner PWB.
4. Remove twenty connectors and two
FFCs from the control PWB.
5. Remove the wires from the clamp.
Figure 1-5-55
Scanner PWB
Wires
Clamp
YC29
YC28
YC6
YC8
YC7
(FFC)(FFC)
YC3
YC19
YC30
YC23
YC25
YC17
YC13
YC16
YC20
YC27
YC21
YC18
YC24
YC10
YC26
YC9
YC12
YC101
YC109
YC108
YC104
YC105
Connectors
FFCs
Connectors
Control PWB
Scanner PWB
Control PWB
Y113860-1 Sevice Manual

Table of Contents

Related product manuals