EasyManua.ls Logo

Omron NX-ID - Page 272

Omron NX-ID
424 pages
To Next Page IconTo Next Page
To Next Page IconTo Next Page
To Previous Page IconTo Previous Page
To Previous Page IconTo Previous Page
Loading...
Appendices
A - 22
NX-series Digital I/O Unit User’s Manual (W521)
Unit name
DC Input Unit
Model
NX-ID5342
Number of points
16 points
External connection
terminals
Screwless clamping terminal block (16 ter-
minals)
I/O refreshing method
Switching Synchronous I/O refreshing and Free-Run refreshing
Indicators
TS indicator, input indicators
Internal I/O common
NPN
Rated input voltage
24 VDC (15 to 28.8 VDC)
Input current
2.5 mA typical (at 24 VDC), rated current
ON voltage/ON current
15 VDC min./2 mA min. (between IOV and
each signal)
OFF voltage/OFF cur-
rent
5 VDC max./0.5 mA max. (between IOV and
each signal)
ON/OFF response time
20 μs max./400 μs max.
Input filter time
No filter, 0.25 ms, 0.5 ms, 1 ms (default), 2
ms, 4 ms, 8 ms, 16 ms, 32 ms, 64 ms, 128
ms, 256 ms
Dimensions
12 (W) x 100 (H) x 71 (D)
Isolation method
Photocoupler isolation
Insulation resistance
20 M min. between isolated circuits (at
100 VDC)
Dielectric strength
510 VAC between isolated circuits for 1
minute at a leakage current of 5 mA max.
I/O power supply
method
Supply from the NX bus
Current capacity of I/O
power supply terminal
Without I/O power supply terminals
NX Unit power con-
sumption
Connected to a CPU Unit
0.90 W max.
Connected to a Communications Cou-
pler Unit
0.55 W max.
Current consumption
from I/O power supply
No consumption
Weight
65 g max.
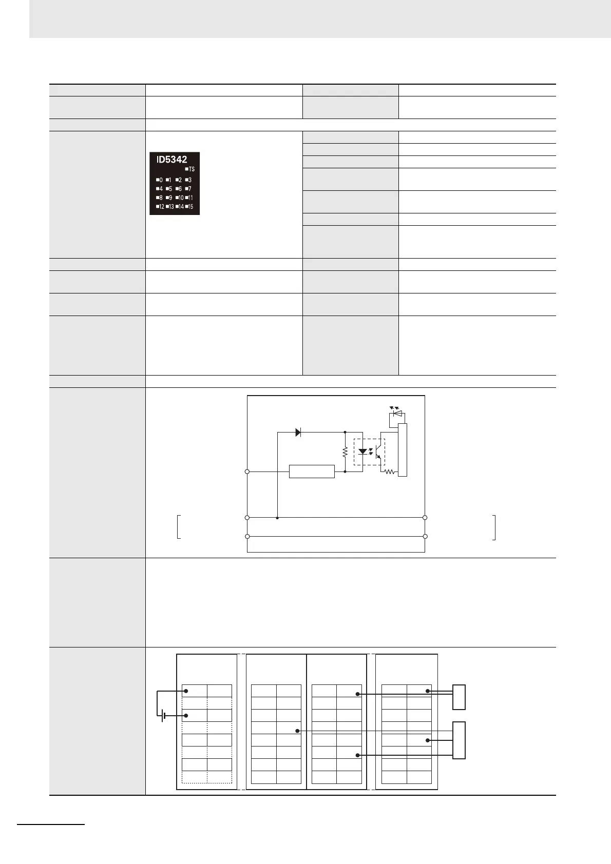
Circuit layout
Installation orienta-
tion and restrictions
Installation orientation:
Connected to a CPU Unit
Possible in upright installation.
Connected to a Communications Coupler Unit
Possible in 6 orientations.
Restrictions: No restrictions
Terminal connection
diagram
IN0 to IN15
Terminal block
Internal circuits
Current control
circuit
NX bus
connector
(left)
I/O power supply +
I/O power supply
I/O power supply +
I/O power supply
NX bus
connector
(right)
Two-wire sensor
Three-wire sensor
24 VDC
DC Input Unit
NX-ID5342
Additional I/O
Power Supply Unit
I/O Power Supply
Connection Unit
I/O Power Supply
Connection Unit
IOG
IOG
IOG
IOG
IOG
IOG
IOG
IOG
IOG
IOG
IOG
IOG
IOG
IOG
IOG
IOG
IOV
IOV
IOV
IOV
IOV
IOV
IOV
IOV
IOV
IOV
IOV
IOV
IOV
IOV
IOV
IOV
IN0
IN4
IN8
IN2
A1 B1
A8 B8
IN6
IN10
IN1
IN5
IN9
IN3
IN7
IN14
IN12
IN15
IN13
IN11
IOV
IOG
IOV
IOG
IOV
IOG
IOV
IOG
A1 B1
A8 B8
A1
B1
A8
B8
A1 B1
A8 B8

Table of Contents

Related product manuals