EasyManua.ls Logo

Omron R88D-KN series

Omron R88D-KN series
570 pages
To Next Page IconTo Next Page
To Next Page IconTo Next Page
To Previous Page IconTo Previous Page
To Previous Page IconTo Previous Page
Loading...
4-33
4 System Design
G5 Series AC Servo Drives With Built-in EtherCAT Communications, Linear Motor Type
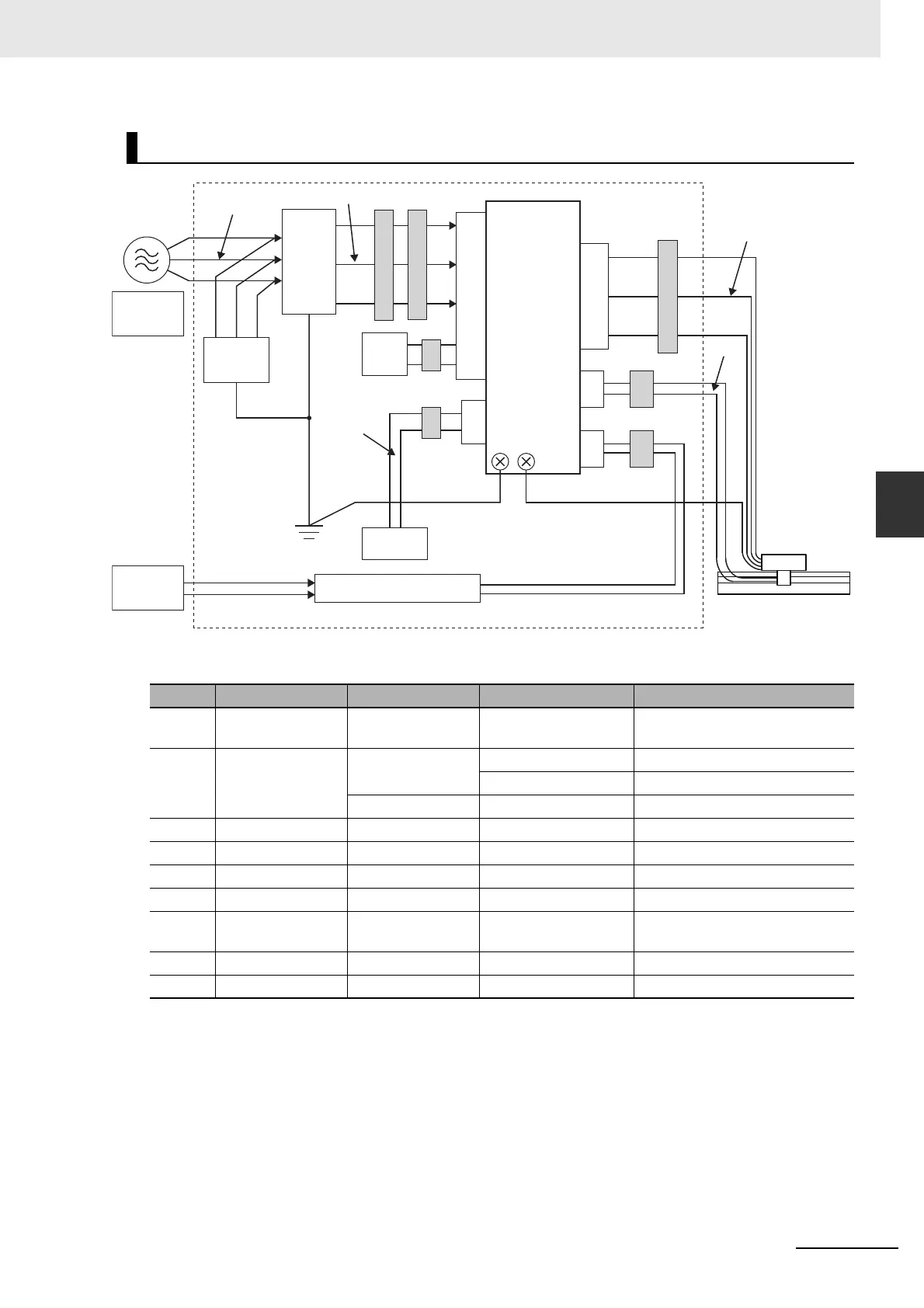
4-3 Wiring Conforming to EMC Directives
4
4-3-1 Wiring Method
Unit Details
*1 A specified combination of Servo Drive and Linear Motor must be used.
400 VAC Input Servo Drive Models
Symbol Name Manufacturer Model Comment
SG Surge absorber Okaya Electric
Industries Co., Ltd.
R·A·V-801BXZ-4
NF Noise filter Okaya Electric
Industries Co., Ltd.
3SUP-HQ10-ER-6
3SUP-HL50-ER-6B
Schaffner FN258-42-07
SD Servo Drive OMRON *1
LM Linear Motor  *1
FC1 Clamp core TDK ZCAT3035-1330
FC2 Clamp core Schaffner RJ8035
FC3 Clamp core NEC TOKIN
Corporation
ESD-SR-250
TB Switch box 
Controller 
LM
(3)
(4)
(1)
(2)
(6)
(5)
(7)
(8)
FC2
FC1
FC3
ECAT
IN
TB
L1
L2
L3
L1C
L2C
1Ø:
100 VAC
24
VDC
3
Ø:
400 VAC
SG
NF
FC1
FC1
SD
FC1
FC1
CNA
CN1
CNB
CN4
U
V
W
Controller

Table of Contents

Related product manuals