EasyManua.ls Logo

Omron Sysdrive RX Series - Page 358

Omron Sysdrive RX Series
442 pages
Print Icon
To Next Page IconTo Next Page
To Next Page IconTo Next Page
To Previous Page IconTo Previous Page
To Previous Page IconTo Previous Page
Loading...
7-9
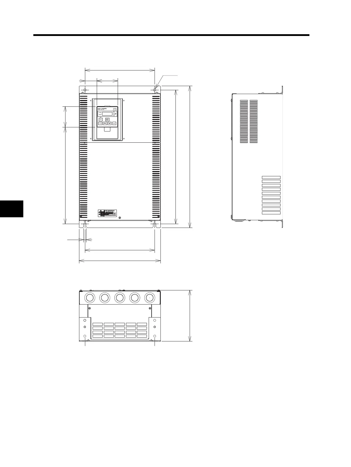
7-2 Dimensional Drawing
7
Specifications
3G3RX-A2300/A4300
368
79
265
310
10
510
540
2-φ10
195
45 80
265

Table of Contents