EasyManua.ls Logo

Panasonic 140 - Control - Circuit 2

Panasonic 140
84 pages
Print Icon
To Next Page IconTo Next Page
To Next Page IconTo Next Page
To Previous Page IconTo Previous Page
To Previous Page IconTo Previous Page
Loading...
69
Appendix Heat Pump Chiller 140-210
P
BU
BLACK
GNYE
GY
BLUE
BN
VIOLET
ORANGE
BK
RD
OG
WH
VT
GREY
RED
BROWN
GREEN/YELLOW
WHITE
P
WH
RD
FDWP1/2.53
FDWP1/2.55
SE 4595C
HIGH
SPEED
SE 4596
CST2
2xBK
K3
K4
27
RD
27
25
26
27
TB
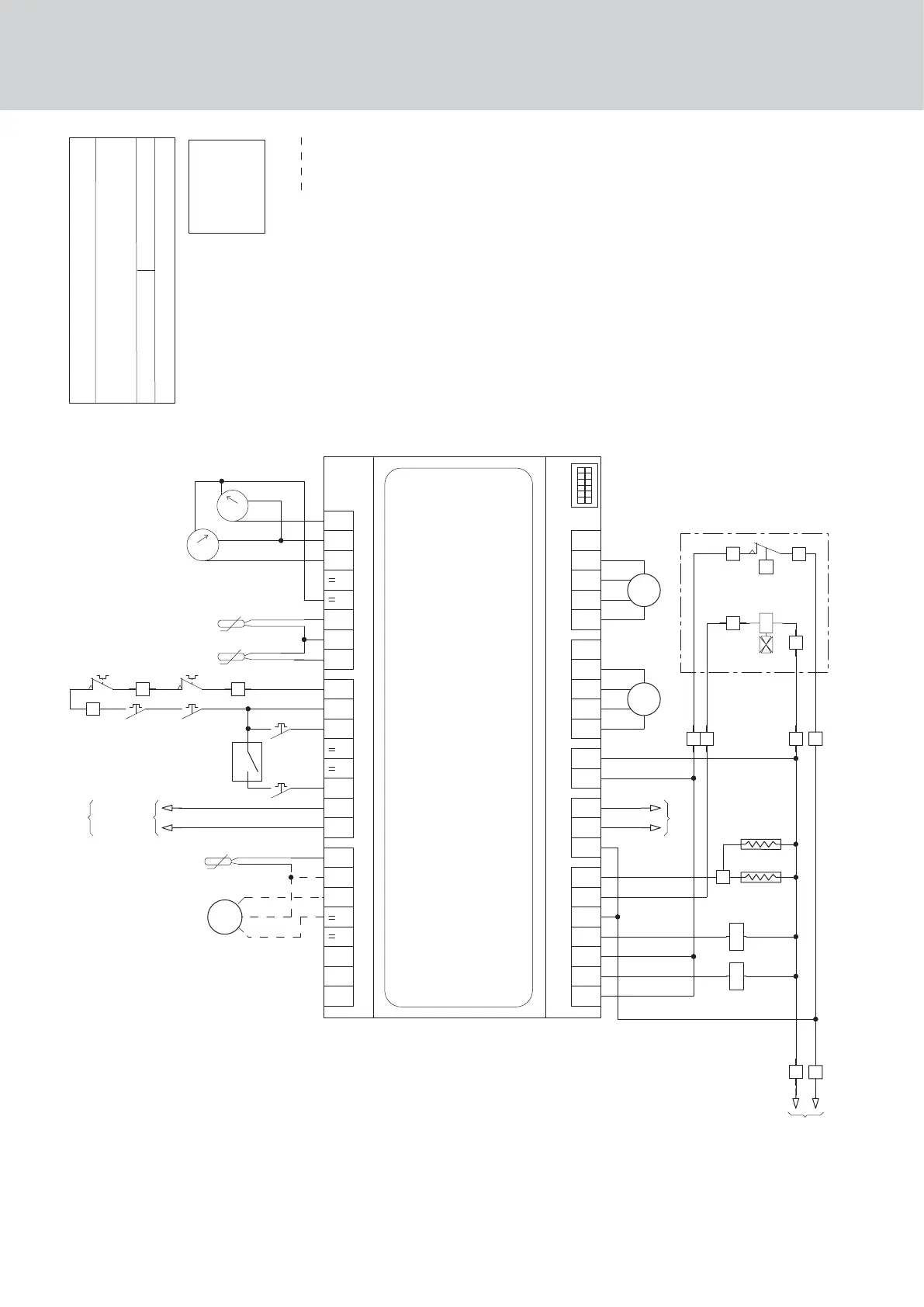
CIRCUIT 2
TB
8
8
VT
EEV2
EEV1
L
BK
LOW
SPEED
GN
BK
WH
WH
GN
7
TB
WPT
TB
26
L
FTOF2-H
L
S3
10
BU
BU
BU
87
FT3
R3
FOFD
230V
N
GN
HP2
WH
OG
OG
SE 4598C
3991483
SE 4596
L
1
9
5
27
BK
L
WH
GN
2xBK
FPC2
CDT2
FT4
R4
FOFC
FTOF2-L
27
RD
RV2
WH
VT
VT
MODEL
190/210
N821
140/150/170/190/210
N
3
8
L
10
WH
25
BK
RD
2xBK
CONTROL WIRING DIAGRAM
OCT2
FPE2
N
GN
BK
WH
2
25
3
2
M1+
M1-
M2+
SIEMENS
115...230V
BSPBUS
COM
M2-
DN
DL1
T8
T7
T6
Q44
C
DO1
DO2
Q34
Q33
T5
Q24
T4
Q13
Q14
Q23
24...230V
24...230V
T1
T2
X1
M
X2
5V
24V
X3
X7
M
X8
T3
POL96
M
X4
X5
M
X6
5V
24V
M1+
M1-
M2+
COM
M2-
X11
M
X12
X9
M
X10
5V
24V
ADR/TERM
>
P
A1
A2
A1
A2
43
44
M1
M2
43
44
44
43
43
44
OPTIONAL
Control - Circuit 2

Table of Contents