EasyManua.ls Logo

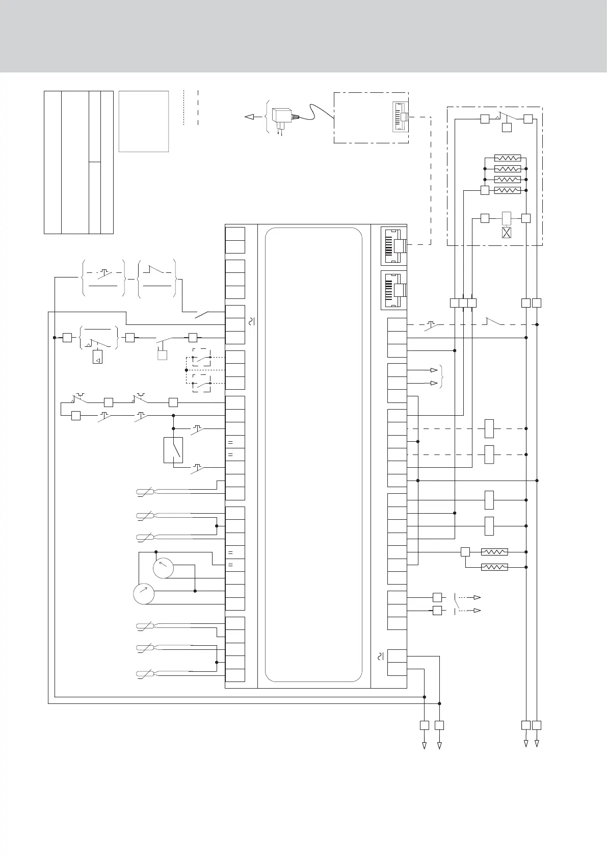
Panasonic 140 - Control - Circuit 1 - Without Neutral

Panasonic 140
84 pages
Print Icon
To Next Page IconTo Next Page
To Next Page IconTo Next Page
To Previous Page IconTo Previous Page
To Previous Page IconTo Previous Page
Loading...
76
Appendix Heat Pump Chiller 140-210
P
P
GREY
RED
OG
RD
VT
WH
ORANGE
VIOLET
BN
BU
BK
GNYE
BLUE
GY
BLACK
BROWN
GREEN/YELLOW
WHITE
RJ 45
BK
GN
7
2xBK
2xBK
WH
WH
GN
BK
2xBK
2xBK
2xBK
FT1
KA1
FT2
CONTROL WIRING DIAGRAM
SM1
SD/N
FPC1
FPE1
CDT1
EWT
LWT
OCT1
FS
KWP1
K2
K1
RAG
RV1
N
L
HP1
FTOF1-H
FTOF1-L
230V
24V
KWP2
R2
R1
OAT
FOFA
FOFB
03
WPS
78
8
WH
VT3
VT
2xBK
CST1
1
2
3
1
4
5
7
6
VT
OG
7
2
GY
FDWP2
01
5
24
24
24
21
21
22 23
24
22
23
1
2
L
L
L
L
RD
WH
BU
BU
BU
L
2
S1
22
23
OG
OG
2
3
N
1
N
4
24
L
L
5
4
3
2
MODEL
170/190/210
SE 4649
140/150/170/190/210
N821
3991511
3x400VAC CIRCUIT 1
SE 4648
OG
VT
LOW
SPEED
SE 4647
HIGH
SPEED
SE 4648
TB
TB
TB
TB
ALARM
29
28
3A/250V max
28
29
BU
BU
BU
RD
RD
FTWP2
RD
03
1
FDWP1
1
01
FTWP1
1
1
3G MODEM
SE 4648
PC
Q64
Q73
Q74
DL1
SIEMENS
PB
24...230V
Ethernet
BSP
BUS
DL2
DN
115...230V 24...230V
C
DO1
DO2
Q84
Q54
Q53
T-HI
T-IP
T13
T12
T11
Q33
Q34
Q43
Q44
Q24
Q21
T10
Q22
T9
Q12
Q11
Q14
T8
24...230V
24...230V 24V
24V
G0
B1
M
B2
M
T1
B3
T2
X1
M
X2
5V
24V
X3
X7
M
X8
T4
D1
M
D2
T5
T6
DU1
DG
DU2
A+
B-
REF
T7
CE+
CE-
RS485
24V
POL687
T3
M
X4
X5
M
X6
5V
24V
O1 O1
<
P
H O
2
>
P
A1
A2
A1
A2
43
44
M1
M2
A1
A2
A1
A2
43
44
44
43
43
44
44
43
11
14
43
44
WIRING BY INSTALLER
OPTIONAL
Control - Circuit 1 - without neutral

Table of Contents