EasyManua.ls Logo

Panasonic 140 - Control - Circuit 2 - Without Neutral

Panasonic 140
84 pages
Print Icon
To Next Page IconTo Next Page
To Next Page IconTo Next Page
To Previous Page IconTo Previous Page
To Previous Page IconTo Previous Page
Loading...
77
Appendix Heat Pump Chiller 140-210
P
P
OG
RD
VT
WH
GREY
ORANGE
VIOLET
BK
RED
GNYE
BLUE
BN
BU
GY
BLACK
BROWN
GREEN/YELLOW
WHITE
BK
GN
WH
WH
GN
BK
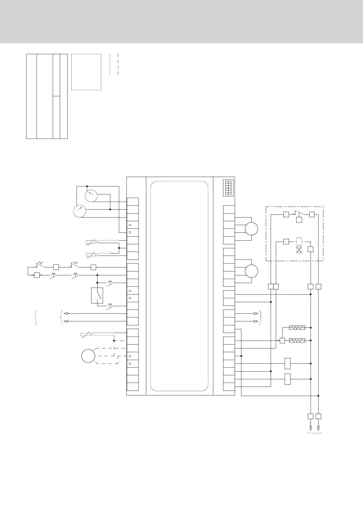
CONTROL WIRING DIAGRAM
FPC2
FPE2
K4
K3
N
L
230V
R4
R3
LOW
SPEED
OG
VT
WH
27
L
26
25
L
27
27
RD
27
26
25
BU
L
BU
BU
RV2
HP2
25
2
N
1
3
27
L
5
3
2
N
L
SE 4650
140/150/170/190/210
N821
3991512
3x400VAC CIRCUIT 2
SE 4648
SE 4648
HIGH
SPEED
RD
GN
BK
WH
RD
GN
BK
WH
EEV1
EEV2
FTOF2-L FOFC
2xBK
FOFD
OCT2
8
2xBK
7
78
FTOF2-H
8
VT
CST2
FT4
FT3
WH
WPT
BK
CDT2
2xBK
WH
TB
WH
TB
RD
S3
VT
9
10
10
SE 4647
FDWP1/2.55
FDWP1/2.53
TB
MODEL
190/210
TB
8
OG
GN
M1+
M1-
M2+
SIEMENS
115...230V
BSPBUS
COM
M2-
DN
DL1
T8
T7
T6
Q44
C
DO1
DO2
Q34
Q33
T5
Q24
T4
Q13
Q14
Q23
24...230V
24...230V
T1
T2
X1
M
X2
5V
24V
X3
X7
M
X8
T3
POL96
M
X4
X5
M
X6
5V
24V
M1+
M1-
M2+
COM
M2-
X11
M
X12
X9
M
X10
5V
24V
ADR/TERM
>
P
A1
A2
A1
A2
43
44
M1
M2
43
44
43
44
44
43
WIRING BY INSTALLER
OPTIONAL
Control - Circuit 2 - without neutral

Table of Contents