EasyManua.ls Logo

Panasonic DMR-ES10P

Panasonic DMR-ES10P
66 pages
To Next Page IconTo Next Page
To Next Page IconTo Next Page
To Previous Page IconTo Previous Page
To Previous Page IconTo Previous Page
Loading...
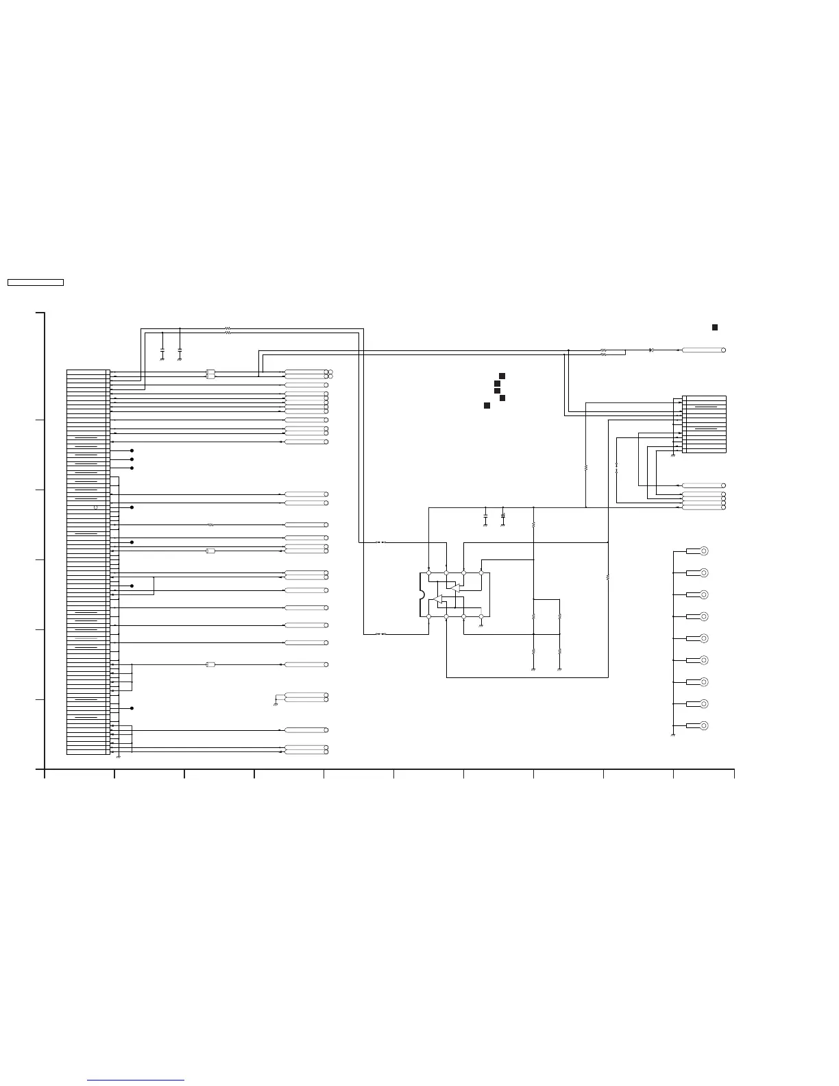
18.4. Main Net Section (Main P.C.B. (2/5)) Schematic Diagram (M)
H
AAU GND
PGND
VCC OUT - +
VSS+-GND
PP7404
TUNER P.C.B.
TO PS7801
6V47
C7437
0.1
C7436
ORDERING.WHEN YOU ORDER A PART,PLEASE REFER TO PARTS LIST.
NOTE:DO NOT USE ANY PART NUMBER SHOWN ON THIS SCHEMATIC DIAGRAM FOR
K9ZZ00001279
ZJ7409
K9ZZ00001279
ZJ7408
K9ZZ00001279
ZJ7407
K9ZZ00001279
ZJ7403
K9ZZ00001279
ZJ7402
K9ZZ00001279
ZJ7401
K9ZZ00001279
ZJ7406
K9ZZ00001279
ZJ7405
K9ZZ00001279
ZJ7404
2.2K
R7442
K7407
K7408
0
K7404
15K
R7444
1K
R7443
2.2K
R7445
13K
R7446
R7403 4700
R7402 4700 B0JACE000001
D7401
PX SW 5.2V
0
K7413
K7401
1TUNER L
1TUNER R
GND
TUNER VIDEO1
UNREG 38V
GND
AFC
IIC DATA
IIC CLK
TUNER 5V
GND
TUNER 5V P
TU VIDEO IN V
TUNER R A
ATUNER L
TUNREG38V
1
2
3
4
5
6
7
8
9
10
11
12
13
LB7403 J0JKB0000003
LB7402 J0JKB0000003
R7401 100
LB7409 J0JHC0000032
LB7410 J0JHC0000032
LB7412 0
LB7411 0
0.1
C7407
0.1
C7406
V
V
P
V
V
P
V
V
V
V
P
V
P
A
A
V
A
A
A
A
T
T
T
T
T
T
T
T
A
AIIC DATA
IIC CLK
XINTP
SCLK
UARTM2P
XINTM
UARTP2M
SBPTM
SBMTP
XMPREQ
XDMUTE
AU5V
AADC L
AADC R
IECOUT
MIXLOUT DM
MIXROUT DM
ANA3.3V
YOUT DM
ANA5V
COUT DM
RPROUT DM
GPYOUT DM
BPBOUT DM
D3.3V
V YIN DM
CPNCIN DM
D1.5V
CL7408
CL7403
CL7404
CL7405
CL7406
CL7407
CL7402
4321
5678
(AMP)
C0BBBA000085
IC7404
-
+
-
+
P7401
(AUDIO NET SECTION)
DIGITAL P.C.B.
TO P9001
D1.5V
CPNCIN DM
D1.5V
DGND
D1.5V
V YIN DM
D1.5V
DGND
RGB CPSVIN
CSYNC IN
DGND
B IN
D3.3V
DGND
D3.3V
G IN
D3.3V
DGND
D3.3V
R IN
NET STATUS
DGND
BPBOUT DM
DGND
GPYOUT DM
DGND
RPROUT DM
BSON
DGND
ANA5V
COUT DM
BILING L
DGND
ANA5V
YOUT DM
DGND
DGND
DGND
DGND
ANA3.3V
MIXROUT DM
STEREO L
MIXLOUT DM
AUGND
IECOUT
AUGND
DGND
AUGND
A DEF MUTE
AADC R
AADC L
AUGND
AUGND
2AADC R
2AADC L
VREF
AU5V
XDMUTE
XMPREQ
ITA2M
SBMTP
ITM2A
SBPTM
UARTP2M
XINTM
UARTM2P
SCLK
SCURVE1
XINTP
SCURVE0
I2C5CK
I2C5DT
88
87
86
85
84
83
82
81
80
79
78
77
76
75
74
73
72
71
70
69
68
67
66
65
64
63
62
61
60
59
58
57
56
55
54
53
52
51
50
49
48
47
46
45
44
43
42
41
40
39
38
37
36
35
34
33
32
31
30
29
28
27
26
25
24
23
22
21
20
19
18
17
16
15
14
13
12
11
10
9
8
7
6
5
4
3
2
1
10987654321
F
E
D
C
B
A
DMR-ES10P/PC
Main Net Section(Main P.C.B.(2/5))
Schematic Diagram(M)
B
P:Sub Power Section(Page: )
A
M:Main Net Section(Page: )
B
V:Video I/O Section(Page: )
C
A:Audio Main Section(Page: )
D
T:Timer Section(Page: )
E
DMR-ES10P / DMR-ES10PC
44

Table of Contents

Related product manuals