EasyManua.ls Logo

Panasonic DMR-ES30VEG

Panasonic DMR-ES30VEG
103 pages
To Next Page IconTo Next Page
To Next Page IconTo Next Page
To Previous Page IconTo Previous Page
To Previous Page IconTo Previous Page
Loading...
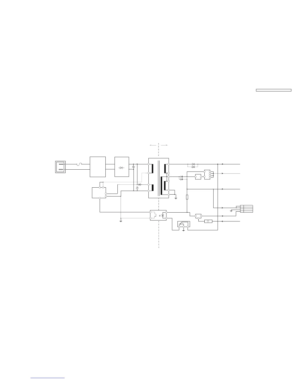
23 BLOCK DIAGRAM
23.1. POWER SUPPLY BLOCK DIAGRAM
DMR-ES30VEG
DMR-ES30VEC
DMR-ES30VEB
POWER SUPPLY
BLOCK DIAGRAM
1
2
3
4
F1101
AC-Socket
P1101
SURGE
ABSORBER
D1101, L1101
L1102
RECTIFIER
4x
C1103
P2
P1
IC1101
SW IC
VCC
D1D2
8
T1101
SW TRANSFORMATOR
GND
FB
X SW17V
B1
B2
IC1201
Q1201
X_SW5R8V
X_SW12
IC1203
DR_5V
SW LOU
QR1202
DR_PON_H
DR_GND
DR_12V
DR_12V
P1201
IP1221
IC1202
C
AR
7
4
5
2
4
3
2
2
1
8
L
1
1
7
3
6
3
16
17
14
15
13
11
5
5
2
2
1
7
4
HOT COLD
DMR-ES30VEG / DMR-ES30VEC / DMR-ES30VEB
61

Table of Contents

Related product manuals