EasyManua.ls Logo

Panasonic DMR-ES30VEG

Panasonic DMR-ES30VEG
103 pages
To Next Page IconTo Next Page
To Next Page IconTo Next Page
To Previous Page IconTo Previous Page
To Previous Page IconTo Previous Page
Loading...
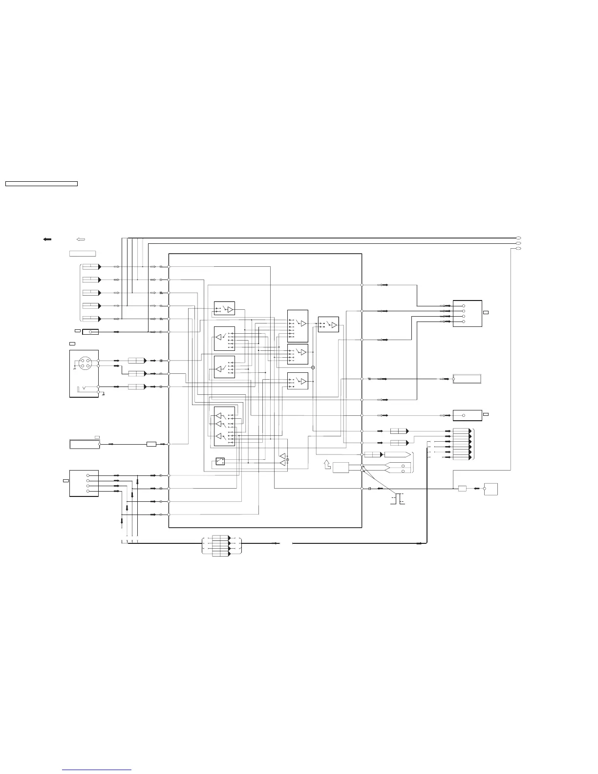
23.4. VIDEO BLOCK DIAGRAM
DMR-ES30VEG
DMR-ES30VEB
VIDEO 1/3
BLOCK DIAGRAM
DMR-ES30VEC
P9106 P7402
51
P7402P9106
47
P7402P9106
55
59
P9106 P7402
P7402
63
P9106
C OUT DM
Y OUT DM
RPROUT DM
GPYOUT DM
BPBOUT DM
FROM
DIGITAL
P. C . B .
JK3901
21 PIN JACK
20
AV1
(TV)
AV1VIDEO
11
12
1
2
3
4
6
7
JK3002
FRONT JACK
AV3
S-VIDEO IN
VIDEO IN
JK3902
21 PIN JACK
15
11
7
20
RED/C
GREEN
BLUE
VIDEO/Y
AV2
(DECODER/EXT)
R
B
B
RGB CPS V
G
G
G
B
R
R
RGB CPS V
AV3 Y
AV3 C
AV3 V
AV2 R/C
AV2 G
AV2 B
AV2 V /Y
B
A12
A5
SLICER
Q9703, Q9705
IIC CLK
IC9701
28
29
IC9701
IIC DATA
FROM/TO
INTERFACE
P9106
87
83
P9106
67
P9106
71
P9106
75
P9106
79
P9106
G
R
B
RGB CPS V
TO
DIGITAL
P. C . B .
BUFFER
Q7404
TU_V_IN 1
11 11
PP6400 PS6002
44
PS6002PP4600
99
PS6002PP4600
44
P9102P6002
66
P9102P6002
15 15
P9103P6003
11 11
P9104P6004
12 12
P9101P6001
11 11
P9101P6001
13 13
P9104P6004
VIDEO
VHS
OUT
18
TU7401
U/V TUNER
JK3902
21PIN JACK
19 VIDEO
AV2
(DECODER/EXT)
JK3901
21PIN JACK
7 BLUE
AV1
(TV)
11 GREEN
19 VIDEO/Y
15 RED/C
AV2 R/G/B
REC SIGNAL PB SIGNAL
5V
2.3V
1.0V
MAIN P.C.B.
CPN CIN DM
DVD
24
U/V TUNER PACK
TU7402
TUNER VIDEO OUT
VIDEO IN
DVD TU
BUFFER
Q7403
7
RF CONVERTER
TU7403
VIDEO IN
91
93
95
97
99
33
41
45
37
39
1
3
5
31
AV1V IN
AV3Y IN
AV3 C IN
AV3V IN
AV4 Y
AV2 R/C
AV2 G
AV2 B
AV2 V /Y
IC3901
9
AV1
R-C
OUT
12
AV1
B
OUT
17
AV1
G
OUT
23
AV4
V
OUT
26
AV1
V/Y/C
OUT
28
AV2
V
OUT
81
C-ADC
OUT
83
V/Y
ADC
OUT
85
SLICER
88
SCL
89
SDA
30
TUNER
V
OUT SEL
DEC SEL
TUN 1/2
YINSEL
VINSEL
DVD IN SEL
RGB SEL
DAC Y
AV2 Y
TUN
DVD/
VHS
CINSEL
ENC C IN
ENC Y IN
(coupled with Y switch)
TUN DVD/VHS
AV1
AV3
AV2
DVD
VCR Y
AV1
TUN DVD
AV2
DVD
AV3 Y
TUN DVD/VHS
VCR C
VCR V
VCR Y
VCR Y
VCR V
VCR V
DAC Y
DAC C
DAC V
AV3 C
AV2 C
SV18
SV1
SV2
SV13b/SV10
SV12b/SV9
SV11b/SV8
SV15b/
SV17C
SV7
SV6
SV5
SV3/SV4
0
1
000
001
100
010
011
000
010
011
001
000
010
011
001
000
010
011
0
1
10/10
01/10
11/ 10
xx/11
000/0x
00/10
xx/00
0/0
0/1
000/10
000/0
x
000/10
000/0x
000/10
010/xx
011/xx
ENC B/B- Y IN
ENC G/ Y IN
ENC R/R- Y IN
IIC BUS
LOGIC
DMR-ES30VEG / DMR-ES30VEC / DMR-ES30VEB
64

Table of Contents

Related product manuals