EasyManua.ls Logo

Panasonic DMR-ES30VEG

Panasonic DMR-ES30VEG
103 pages
To Next Page IconTo Next Page
To Next Page IconTo Next Page
To Previous Page IconTo Previous Page
To Previous Page IconTo Previous Page
Loading...
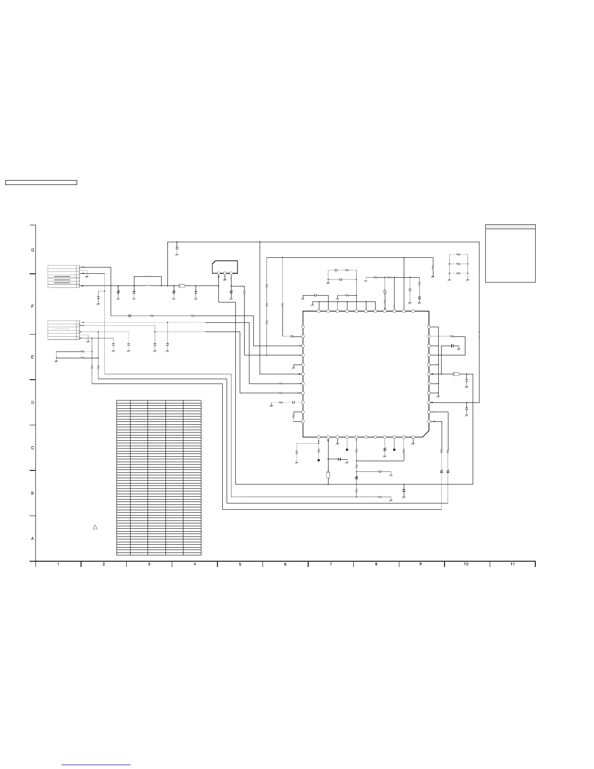
24.8. NICAM DECODER
DMR-ES30VEG
DMR-ES30VEC
DMR-ES30VEB
NICAM DECODER
SCHEMATIC DIAGRAM
!
Note:
Marked *(spare) parts
are not assembled
Important Safety Notice:
Components identified with
the mark have the special
characteristics for safety.
When replacing any of these
components use only the
same type.
NAVIGATION
INTERCONNECTION
POWER SUPPLY
DVD OUTPUT
INTERFACE
IO/TUNER
SYSCON/SERVO/TIMER
VHS AUDIO
VIDEO
FRONT JACK
FL DRIVE
K7307
0(B)
6800(A)
R7314
(RESET)
0
K7303
R7321
5600
C7328
680P
C7327
0.012
0
C7329
J0JCC0000080
LB7303
0
R7315
R7307
0(B)
4700(A)
R7306
3900
C7338
470K
R7305
100
8200
C7330
0
K7306
R7308 7500
100
R7304
VSSA4
OUT M
P2
V REF2
EXTIL
EXTIR
MONO IN
P1
VSSD3/NC(E)
VDDD3
SYS CLK/CTRIG
PCLK
ADDR1/AFR(E)
XTALO
XTALI
TPB
TEST2
1 REF/LF2(E)
ADDR2
VSSA2
VDDA2
TEST1
OUT L
OUT R
VDDA1
VSSA1
VSSD1
VDDD1
VSSD2
AF11
TP2
AF1D
TP1
AF21
AF20
LPF
SDA
SCL
VDDA3
VSSA3
CRESET/CAF2(E)
SIF1
VREF1/CAF1(E)
SIF2
OUTGIN
C0EAH0000051
IC7302
JC REG.5V
GND
TU AUDIO IN
SIF
0.1
C7314
J0JCC0000124
LB7302
10K
R7309
C7315
470K
TL7301
TL7302
TL7303
16V47
C7317
16V10
C7318
220
R7311
220
R7310
16V10
C7313
16V10
C7312
R7312
220(B)
6800(A)
220(B)
6800(A)
R7313
0.1(B)
0.01(A)
C7324
1000P
C7323
J0JCC0000124
LB7301
(B)
0
R7322
H0D245500016
(B)
H0H400400006
(A)
X7301
0.1
C7332
C7316 4700P
C7319 1500P
C7333
0.1(B)
0.47(A)
C7326 470K
C7325 0.01
C7336 0.1
C7331
0.012
C7330
680P
R7323
5600
C7337
470K
R7325 100
R7324 100
100P
C7311
C7302 0
0
R7301
0.1(B)
0.01(A)
C7301
321
50V2.2
C7334
0.01
C7306
6V100
C7303
6V100
C7303
(B)
(A)
L7303 1u
6V100
C7305
0.1(B)
0.01(A)
C7335
C1AB00001404(B)
C0ZBZ0000580(A)
IC7301(NICAM/A2)
K73050
K7301 0
K7302 0
7
6
5
4
3
2
1
PK7301
(MAIN NET SEC.)
MAIN P.C.B.
TO PK7701
34 35 36 37 38 39 40 41 42 43 44
22 21 20 19 18 17 16 15 14 13 12
23
24
25
26
27
28
29
30
31
32
33
11
10
9
8
7
6
5
4
3
2
1
0
R7319
R7317 0
DECODER AUDIO(L)
GND
DECODER AUDIO(R)
SDA
SCL
10P
C7307
10P
C7308
C7310
100P(B)
1500P(A)
100P(B)
1500P(A)
C7309
PK7302
(MAIN NET SEC.)
MAIN P.C.B.
TO PK7702
1
2
3
5
6
4
R7320 3300
R7318 3300
R7316 3300
DMR-ES30VEG DMR-ES30VEC DMR-ES30VEB (VHS) DMR-ES30VEB (DVD)
C7301 0.01 [KB] 0.1 0.1 0.1
C7304 0.1 $ $ $
C7305 $ 6V100 6V100 6V100
C7306 $ 0.01 0.01 0.01
C7307 $ 10P 10P 10P
C7308 $ 10P 10P 10P
C7309 1500P [KB] $ 100P [JC] 100P [JC]
C7310 1500P [KB] $ 100P [JC] 100P [JC]
C7311 $ 100P [JC] 100P [JC] 100P [JC]
C7314 $ 0.1 0.1 0.1
C7315 0.47 [KB] $ $ $
C7316 4700P [KB] $ $ $
C7319 1500P [KB] $ $ $
C7323 $ 1000P [JC] 1000P [KB] 1000P [JC]
C7324 0.01 [KB] 0.1 0.1 0.1
C7325 0.01 [KB] $ $ $
C7326 0.47 [KB] $ $ $
C7327 0.012 [KB] $ $ $
C7328 ECJ1VC1H681J $ $ $
C7330 680P [JC] 8200 8200 8200
C7331 0.012 [KB] $ $ $
C7332 $ 0.1 0.1 0.1
C7333 0.47 [KB] 0.1 [KB] 0.1 [KB] 0.1 [KB]
C7334 $ 50V2R2 50V2R2 50V2R2
C7335 0.01 [KB] 0.1 0.1 0.1
C7336 0.1 [KB] $ $ $
C7337 0.47 [KB] $ $ $
C7338 0.47 [KB] $ $ $
IC7301 C0ZBZ0000580 C1AB00002225 C1AB00002225 C1AB00002225
IC7302 $ C0EAH0000051 C0EAH0000051 C0EAH0000051
K7303 $ ERJ3GEY0R00V ERJ3GEY0R00V ERJ3GEY0R00V
K7306 ERJ3GEY0R00V $ $ $
K7307 $ VWJ0795=5 VWJ0795=5 VWJ0795=5
L7303 VWJ0795=5 1u 1u 1u
LB7301 $ J0JCC0000124 J0JCC0000124 J0JCC0000124
LB7302 $ J0JCC0000124 J0JCC0000124 J0JCC0000124
LB7303 $ J0JCC0000080 J0JCC0000080 J0JCC0000080
R7304 $ 100 100 100
R7305 100 $ $ $
R7306 3900 $ $ $
R7307 4700 ERJ3GEY0R00V ERJ3GEY0R00V ERJ3GEY0R00V
R7308 7500 $ $ $
R7309 $ 1K 10K 10K
R7310 220 $ 220 $
R7311 $ 220 $ 220
R7312 6800 1800 [G] 220 [G] 220 [G]
R7313 6800 1800 [G] 220 [G] 220 [G]
R7314 6800 ERJ3GEY0R00V ERJ3GEY0R00V ERJ3GEY0R00V
R7316 3300 $ $ $
R7317 ERJ3GEY0R00V J0JCC0000103 ERJ3GEY0R00V ERJ3GEY0R00V
R7318 3300 $ $ $
R7319 ERJ3GEY0R00V J0JCC0000103 ERJ3GEY0R00V ERJ3GEY0R00V
R7320 3300 $ $ $
R7321 5600 $ $ $
R7322 $ ERJ3GEY0R00V ERJ3GEY0R00V ERJ3GEY0R00V
R7323 5600 $ $ $
X7301 H0H400400006 H0D245500016 H0D245500016 H0D245500016
DMR-ES30VEG / DMR-ES30VEC / DMR-ES30VEB
76

Table of Contents

Related product manuals